感谢来自 序态设计研究室 的住宅项目案例分享:
空间/人/流动性,共同组合成空间的生命气息。将使用者自身的气息刻印于空间中,空间与居住者彼此互动关联,共生共长。
Space, people and mobility combine to breath an air of life into the surroundings. The residence is revived with the owner’s personality, interacting with the occupants for mutual growth.
此项目为临海改造住宅项目,位于浙江嘉兴海盐,改造后的空间是需要满足一家四口清雅闲适的居住生活。本身是深受江南传统文化熏陶成长的家庭。男主人是一位企业家,需要有独立的办公空间,女主人需要长时间在家照顾新添加的一位小成员之余,生活上也喜欢毛笔字和水墨画,空闲之余偏爱种植花草,希望明亮开阔的视野,考虑到家中的儿女,需考虑其成长空间及学习空间的功能需求。
A renovation project in Linhai, the residence is located in Haiyan, Jiaxing of Zhejiang Province, and is required to satisfy the needs of a family of four who prefer an elegant and leisurely living style. It is a family deeply influenced by traditional culture in the south of the Yangtze River. The male owner is an entrepreneur who needs to have an independent office, and the hostess, who likes practicing calligraphy and ink painting as well as gardening in her spare time, needs to stay at home to take care of a newborn. It is hoped that the design can be space-enhancing with a broad vista, and functional spaces for playing and learning should be considered for the growing children.


空间整体上,客户希望能满足小朋友成长生活之余,运用传统江南元素表达空间。东方文化中,山水作为理念的首选,它既有具象的依托,也包含虚无境界,贯穿于哲学,也流于市井。在抽象层次上我们尝试审视新的一种表达方式。颜色上抽离文人水墨画作的层次灰,宗教院墙的中央土黄色,空间上借鉴山水叠晕穿插的手法具象表达。
In terms of the space as a whole, the client hopes to apply traditional Chinese elements to its expression. As a nod to the oriental culture, we decided on the mountain and river landscape – commonly known as Shanshui – as the key element in our design concept, due to not only its strong expressiveness and popularity, but also its metaphysical philosophy. Therefore, at the abstract level we attempted a new way of expression, in which the prosaic multi-layered greyness preferred by Chinese literati is mixed up with earthy yellow of the religious courtyard wall, and the elements of mountain and rivers are deployed alternatively to represent the essence of the space.
把原有的整体阳台分割为入口玄关和室外活动景观,采用定制青砖和发光青砖结合的光影交错感,增加空间的流动性和层次性。
The original balcony is divided into a porched entrance and an outdoor activity area, fitted with purpose-built luminescent blue bricks for the effect of light and shadow in order to increase the mobility of the structure.


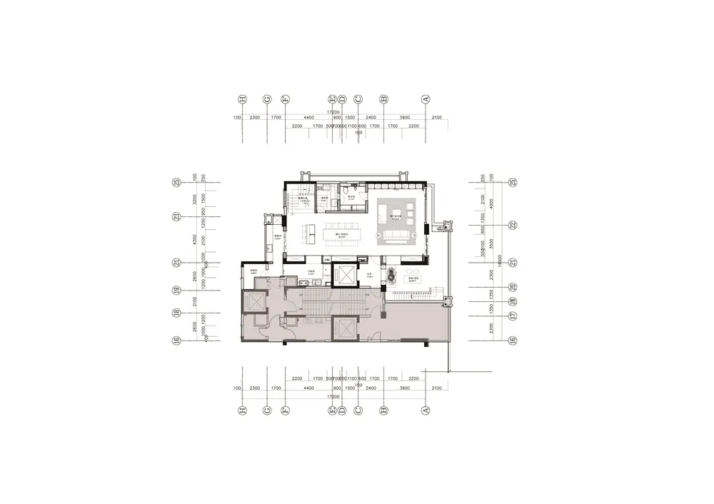
一层我们调整为家庭公共活动区域,为了保证空间和视野的流动性,移动中间的原始楼梯位置,让厨房,餐厅与客厅活动区最大化串联起来。楼梯,洗衣房,卫生间附属空间串联。增大家庭公共活动区域,最大化的保障室内采光和空气流通。
The ground floor is redesigned mainly as a public area. In order to ensure the mobility of space and vision, the original staircase in the middle is moved away to reconnect the kitchen, the dining room and the living room. Also annexed are the stairs, laundry and bathroom. In this way, the public area is maximized to ensure abundant indoor lighting and air circulation.










二层移动后的楼梯平台形成走道和开放式的阅读活动区域,满足未来两个小朋友成长的互动性。一层阳台新增挑空书房空间,在满足男主人独立书房的同时,形成空间的错层性。底部半开放区域为开敞性茶室。
On the upper floor, the moved staircase forms a walkway and an open reading area to meet the interactive needs of the two children in the future. Meanwhile, to the balcony on the first floor is added a new study, which satisfies the need of the male owner and gives the room a touch of desirable disorder. On the bottom the semi-open area serves as an open tearoom.





在抽象到具象之间的过程,我们一直希望转换和借鉴的是山水中至刚至柔,忽高忽低,或动或静。转换在人与人,人与环境是晓分寸,懂张弛,明呼吸。人造环境/自然/人彼此相互交融,相互影响。
In this design imbued with both abstraction and imagery, we hope to reference and make a feature of Shanshui, its power and softness, its peaks and troughs, its flows and serenity. The conversion is realized through personal interactions and those between people and their surrounds. As a result, the designed environment, nature and people blend with and influence each other.
阳光洒落,在袅袅茶香中,萦绕着孩子们的嬉闹声,母亲的小声责备,以及父亲的维护。我们希望通过空间来记录生活的情绪,在细微中发现生活的美好,赋予生活的反馈。
Imagine the scene: in the bright sunlight and aroma of brewing tea, the children are frolicking, the mother tenderly reproaching and the indulgent father defending. We hope the space can record the emotions of life and help people to discover the subtle beauty of everyday living.









∇ 1F分析图

∇ 1层设计平面图

∇ 2F分析图

∇ 2层设计平面图

完整项目信息
设计内容:室内+建筑
规模面积:300平米,景观50平米
设计时间:2016.03—2016.06
施工时间:2017.07—2018.03
设计单位:序态设计研究室(上海)
设计团队:杨添堡,王鹏一,郑乔文,Diamond,罗荆倩
室内及结构施工: 上海睦博装饰设计工程有限公司
照明供应及顾问:大晔照明
家具:上下,MINOTTI
材料:青砖,发光青砖,芬兰涂料漆,港基汇瓷砖,硬包布艺,胡桃木皮,黄铜
摄影师:小云
翻译:Ellen
联系:[email protected]
Scope: Architecture and interior
Area: 300㎡ Courtyard: 50㎡
Design Time: 2016.03- 2016.06
Construction Time: 2017.07-2018.03
Designer Team: XuTai Design and Research Studio
Architects: Tianbao Yang, PengYi Wang, Diamond, JingQian Luo
Contractor: Shanghai MuBo Design Engineering Co. LTD.
Lighting Supply and Consultant: Daye Lighting
Homeware: SHANGXIA, MINOTTI
Materials: blue bricks, luminous blue bricks, Finnish paint, Hong Kong-based ceramic tiles, hard-coated fabric, walnut skin, brass
Photographer: XuTai Design and Research Studio, Xiao Yun
Translator: Ellen
Contact: [email protected]


?
点点赞赏,手留余香