建筑师: Slava Balbek, Lena Briantseva, Vitalina Hoshovska
Project area: 205 sq. m (+ 583 sq. m terrace)
项目面积:205平方米(+583平方米露台)
Project year: 2023 项目年份:2023
Location: Kyiv, Ukraine 位置: 乌克兰基辅
Photo credits: Andriy Bezuglov, Maryan Beresh
图片来源:Andriy Bezuglov、Maryan Beresh

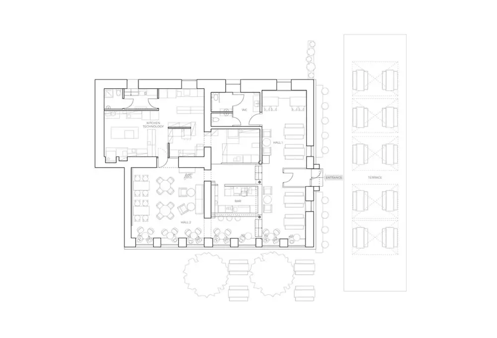
128 Podil Food Market is the flagship of the Kyiv-based 128 cafe chain, located in the building of a former bus station in Podil.
128 Podil Food Market 是总部位于基辅的 128 咖啡连锁店的旗舰店,位于 Podil 的一个前巴士站大楼内。

该连锁店的其他四家咖啡馆位于城市不同地区的住宅区。每个场所都有其独特的特色,但都以舒适、舒适和轻松的咖啡馆形式团结在一起。
Podil’s 128 旨在成为市中心的第一个地点,同时测试一种新的食品市场形式。根据客户的愿景,在温暖的季节,食品卡车会出现在夏季露台上,举办民族美食节。

这项任务看似简单——创造一个新的地方,迅速成为一个具有简单、熟悉氛围的社区中心。客户想要一个方便易懂的设计,在咖啡馆内有充足的光线和植物。笔直、激进的角度和闪亮的金属元素是不可取的——任何可能使旧建筑的历史空间过于现代化的东西。
由于俄罗斯全面入侵乌克兰,该机构的工作停止了——这 128 家原定于 2022 年春季开业。2023 年春季冬季停电后恢复施工。
The building of the former bus station was in a severely neglected state. Its space was divided into numerous small, cramped rooms filled with clutter and Soviet-era office furniture. It was necessary to dismantle internal partitions to expand the space and allow more light into the cafe. At the same time, all load-bearing structures had to be retained – the building was very old and had undergone multiple renovations, causing the walls to literally crack at the seams. The challenge was presented by almost all surfaces – there seemed to be no level ones; the walls and ceiling were very uneven.
前汽车站的建筑处于严重被忽视的状态。它的空间被划分为许多狭小的房间,里面摆满了杂物和苏联时代的办公家具。有必要拆除内部隔板以扩大空间并允许更多的光线进入咖啡馆。同时,必须保留所有承重结构——该建筑非常古老,并且经历了多次翻新,导致墙壁在接缝处开裂。几乎所有的表面都提出了挑战——似乎没有水平表面;墙壁和天花板非常不平整。

Working with historical buildings always brings unexpected discoveries. During the demolition, we found the yellow classic Kyiv brick on the site, characteristic of buildings from that period, with bricked-in arch construction and a basement. The brick became the authenticity we aimed for in the design of 128. On the left side of the facade, we refreshed the plaster, cleaned the main facade with the entrance group. Historical brick arches were restored – the entrance arch was adorned with the yellow brick that remained after the demolition.
与历史建筑打交道总能带来意想不到的发现。在拆除过程中,我们在现场发现了黄色的经典基辅砖,这是那个时期建筑的特征,有砖砌的拱形结构和地下室。这块砖成为我们在设计 128 时所追求的真实性。在立面的左侧,我们刷新了石膏,用入口组清洁了主立面。恢复了历史悠久的砖拱门——入口拱门装饰着拆除后留下的黄砖。

After coordinating the complex demolition, we faced the need to reinforce the building’s columns with metal encasement – they were needed for safety reasons. Due to the column encasement, we decided to fill the space between the windows with plastered fragments. The main reference for the painters was the old plaster that, in some places, had been preserved.
在协调了复杂的拆除工作后,我们面临着用金属外壳加固建筑物柱子的需求——出于安全原因,我们需要这些金属外壳。由于柱子的外壳,我们决定用抹灰碎片填充窗户之间的空间。画家的主要参考是旧石膏,在某些地方被保存下来。
Since there were different rooms with varying floor levels in the bus station building unified into one, we decided not to pour the screed in the second hall but to lay it on the joists — this was a quick and simple solution. In the first hall, the floor is poured.
由于公交车站大楼内有不同的房间,楼层各不相同,因此我们决定不在第二个大厅浇筑熨平板,而是将其铺设在托梁上——这是一个快速而简单的解决方案。在第一个大厅,地板被浇筑。


根据我们的理念,该建筑的内部反映了Podil的主题。
The entrance is designed as a glass vestibule, protecting guests at the tables on either side of the entrance from drafts. On the vestibule floor, we used the same pavement as the fragment of the summer terrace, bringing the street inside and visually connecting the interior and exterior.
入口被设计成一个玻璃前厅,保护入口两侧桌子上的客人免受气流的影响。在前厅地板上,我们使用了与夏季露台碎片相同的人行道,将街道带入内部,并在视觉上连接了内部和外部。

At the exit from the vestibule, guests are greeted by the first hall and bar. DIY lamps hang over the bar – we bought lampshades and golden saucers at IKEA, complemented them with metal cut circles, and created a custom solution.
在前厅的出口处,迎接客人的是第一个大厅和酒吧。DIY灯悬挂在吧台上——我们在宜家购买了灯罩和金色碟子,用金属切割圆圈来补充它们,并创造了一个定制的解决方案。


To the left is the passage to the second, more secluded hall, where lounge-style seating awaits guests. The panel in the second hall was created by Kyiv artists, the Feldman sisters. They collaborated with the owner and proposed a panel with a tram, supporting the urban theme of the establishment and Podil spirit.
左边是通往第二个更僻静的大厅的通道,那里有休息室式的座位等待着客人。第二个大厅的面板是由基辅艺术家费尔德曼姐妹创作的。他们与业主合作,提出了一个带有电车的面板,以支持建立和Podil精神的城市主题。



餐厅的厨房区域部分开放——在糕点车间,用玻璃与大厅隔开,咖啡师烘焙糕点和面包。客人可以观察工作坊的工作,订购咖啡,或从开放式展示中选择甜点。
在糕点车间上方,有一个由彩色盘子制成的灯箱菜单,菜品名称将由透明有机玻璃上的字母切口组装而成。这个灯箱参考了以前的公交车站和公交车时刻表。

All furniture chosen for the cafe is of Ukrainian origin. All tables and shelves are custom-made by Ukrainian contractors based on designs and sketches from the bureau.
为咖啡馆选择的所有家具均来自乌克兰。所有桌子和架子都是由乌克兰承包商根据该局的设计和草图定制的。

For the decoration of the 128, the owner brought a large stack of posters from New York of various sizes and formats. We selected our favorites and decorated them in various frames, hanging them on the walls. This adds spatial detailing, a sense of coziness and allows visitors to examine the walls while waiting for their orders.
为了装饰128,店主从纽约带来了一大堆各种尺寸和格式的海报。我们选择了我们最喜欢的,并将它们装饰在各种框架中,并将它们挂在墙上。这增加了空间细节,一种舒适感,并允许游客在等待订单时检查墙壁。



During construction, we found an old map of Ukraine, which we decided to clean, frame, and use in the interior. It echoes the printed map of Podil.
在施工过程中,我们发现了一张乌克兰的旧地图,我们决定将其清理、装裱并在内部使用。它与波迪尔的印刷地图相呼应。

To the right of the entrance are two restrooms: standard and one for people with reduced mobility. For the floor decoration, we found multi-colored tiles on OLX, asked tilers to cut them into pieces, and embedded them in microcement, which is then polished – a meticulous job. Splashes of green color on the walls add a playful vibe to the space.
入口右侧有两间洗手间:标准洗手间和一间行动不便人士洗手间。对于地板装饰,我们在OLX上找到了多色瓷砖,请瓦工将它们切成碎片,然后将它们嵌入微水泥中,然后进行抛光 – 这是一项细致的工作。墙壁上的绿色为空间增添了俏皮的氛围。

In both cabins, there are garden cast-iron sinks with distinctive faucets. Another sink is made from an IKEA table – a hole was cut in the countertop for the sink.
在两个小屋中,都有带有独特水龙头的花园铸铁水槽。另一个水槽是用宜家桌子制成的——在台面上切了一个孔,用于水槽。


The blue mirrored sign above the sink is neon: tubes are fixed between several mirrors with film and glass, creating a recursion effect of the inscription.
水槽上方的蓝色镜面标志是霓虹灯:管子用薄膜和玻璃固定在几面镜子之间,创造了铭文的递归效果。

在128 Podil食品市场的入口对面,将设有食品卡车。我们获得了一个沿立面倾斜的停车场形式的场地。为了组织户外座位,我们建议切出一块沥青,将其水平平整,然后用鹅卵石铺成鹅卵石,上面将放置桌子。通过这种方式,我们创造了一块鹅卵石地毯,其设计灵感来自Podil开发的四分之一网格,与建筑物的地基保持视觉联系。通过这种方式,我们打破了企业前面的大沥青空间,并将其与主立面融为一体。
In the summer, the area will be complemented with benches and tables – several seating points are planned along the side facade, under chestnut trees – as well as green plants.
在夏季,该区域将配备长凳和桌子——沿着侧立面、栗树下规划了几个座位点——以及绿色植物。


For us, 128 Podil Food Market became an opportunity to breathe new life into a historical building and work in our beloved Podil (we’ve created the Bursa hotel, the beer restaurant This Is Pyvbar, the cafe “Dyletant,” and the 6:19 tattoo salon here). Despite all the challenges of the project, we have created a place with soul and are already looking forward to the first street food festivals in the shade of old chestnuts.
对我们来说,128 Podil Food Market 是一个机会,让我们为这座历史建筑注入新的活力,并在我们心爱的 Podil 工作(我们在这里创建了布尔萨酒店、啤酒餐厅 This Is Pyvbar、咖啡馆“Dyletant”和 6:19 纹身沙龙)。尽管该项目面临种种挑战,但我们还是创造了一个有灵魂的地方,并且已经期待着在老栗子树荫下举办的第一届街头美食节。



风格自由,有点战损风的感觉。