宣驰设计为杭州临平杜尚发型的新店设计,为来访者提供了一处与时尚潮流亲密接触的场所。 通过灯光的合理搭配、物件因为灯光反射而产生的奇妙阴影以及使用镜面反射而衍生出的多维度空间视觉效果。 设计师希望借助交错的树干、自然摆放的鹅卵石、错落的光晕,以抽象的树林解释自然光影在空间的运用,营造独特的时尚氛围。

设计师通过采用拉丝不锈钢、大面积石英石自然拼缝与深灰色乳胶漆相结合,高级灰与金属质感的运用以及多边形与圆形在视觉空间中的交互定义内部环境。 整体空间氛围强调人对空间的认知,用丰富的材料表达空间的多样性。 在保持时尚潮流气息的同时,呈现出后工业时代的冷峻硬朗气质。
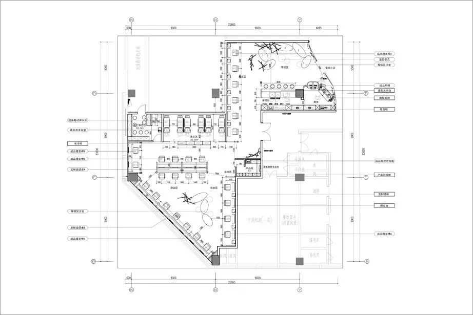
入口处变化多端的空间便开始呈现。椭圆形前台与拉丝不锈钢为主材质的水吧相互呼应。 同时结合等候区自由组合的鹅卵石造型座椅,以及用钢材质设计的树干摆设。 在顶部射灯的照射下,形成扑朔迷离的抽象树影,丰富了视觉体验。





定制家具符合环境整体要求,酒红色木纹与黑色皮革的搭配,以及具有手工雕刻肌理感的木饰面。 在材质的运用上使顾客眼前焕然一新。同是手工艺术,这一点与美发师的工作有着异曲同工之处。 顶部通风设施采用的黑钢材质、多边形吊灯、剪发台、灰色大理石地面,为空间质感赋予硬度。




项目名称:杜尚发型(万宝城店) 项目面积:240㎡ 项目地址:杭州临平万宝城2F 完成时间:2017.06 设计单位:杭州宣驰装饰设计有限公司 设计团队:许立强、汤瑞吉、张梦伊、陈鹏飞 设计主材:拉丝不锈钢、石英石
版权声明:本文内容由用户自行发布上传或投稿由设计芝士代为发布,版权归原作者所有,设计芝士不拥有其著作权,亦不承担相应法律责任。如果您发现本站中有涉嫌抄袭或侵权的内容,请点此提交工单进行举报,一经查实,本站将立刻删除涉嫌侵权内容。

