表现空间的张力和矛盾感:这是为摄影师周维先生设计的摄影工作室。项目基地是一个位于北京东五环的工业厂房。近7米的空间净高和连续的三角形屋架是这个工业建筑的典型特征,谜舍希望能在改造后的空间中仍能将这个场所本身所具有的空间属性或多或少的加以保留和利用,创造出具有独特体验的空间氛围。
对于摄影艺术,谜舍的理解是通过镜头捕捉到被拍摄对象与环境之间的张力,或者是被拍摄对象的内在张力。对于空间,谜舍也希望通过体量对比、虚实结合等空间设计的语言去表现空间的张力和矛盾感。
谜舍刻意压低了原厂房的入口高度,并置入了一个旋转约15°的黑色钢盒作为入口,旋转的动作除了打破了入口的常规状态使之迎向人流主动线之外,更避免了通过入口过于直白的看到内部空间,营造出一定程度的暧昧性.钢盒底部暗藏的线性光源,使盒子视觉上更加轻盈,并起到引导客人的作用。
谜舍将摄影办公区一分为二,在空间的北侧搭建钢结构二层,功能性的房间集中的布置在这里。留出南侧的吹拔空间作为接待区和等候区。从较为封闭的盒子进入到完全开敞的吹拔中庭后,又进入到相对密集的功能区域,由空间体量的变化创造出了这样不同的空间节奏。
谜舍将吹拔空间定义为一个小型美术馆,以纯白色的环境为背景,前台、入口盒子、摄影棚大门、钢梯等一系列大体量的建筑构件的造型被处理的非常完整且具有雕塑感,很自然的成为了这个“小型美术馆”的“艺术展品”。在通往二层办公区的楼梯前端谜舍设置了具有户外质感的水泥地台,并使用铺在地上的白色砂石汀步连接楼梯,在室内创造出具有室外感受的区域,模糊室内外的空间界限。
黑白照片是周维先生镜头下最具感染力的作品类型,谜舍也将空间整体的主色调定为黑白两色,以简约写意的方式突出空间纯粹的艺术氛围。
谜舍将接待室的墙面打开,并设计为白色格栅。兼具开放性和私密性的格栅墙与完整的背景墙连成一个整体,形成了一幅虚实相生的图像。
二层会议室如同一个悬挑的白色盒子插在二层的楼面,垂直交叉的空间关系极大的提升了空间的戏剧性,既营造了前台区域的私密感又丰富了会议室空间使用者的体验感。摄影是光影的艺术,谜舍在空间中使用了大量的线性光源以渲染空间简约洗练的氛围。白色格栅底部埋入成品灯条烘托格栅的秩序感。
二层办公室立面采用大小高度不同的透光窗洞丰富立面的肌理,并通过间接发散的光线照亮二层过道空间。











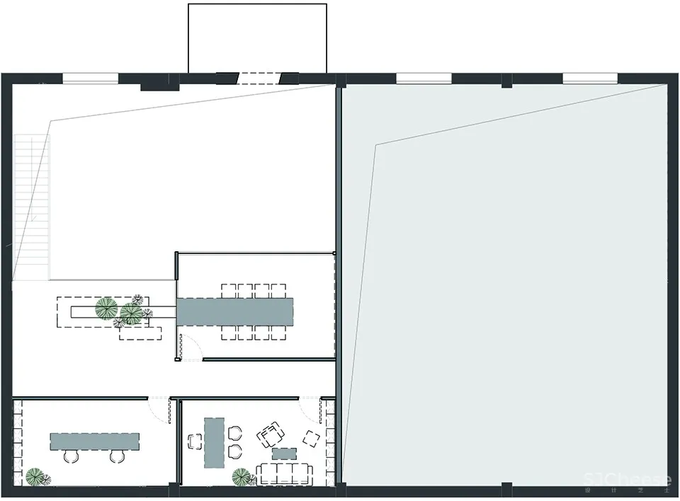
一层平面图
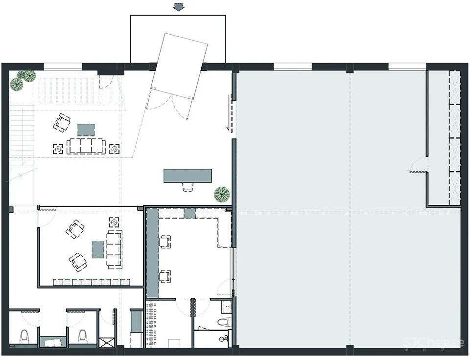
二层平面图
项目:ZOOMWAY Studio 业主:ZOOMWAY 项目地址:北京市朝阳区豆各庄黄厂路1号易心堂文创园40B幢 面积:435平方米 完工时间:2018年11月 设计公司:谜舍设计工作室 设计团队成员:田少寅,曾煜娴,郭益克,黄凯峰, 品牌及导视:JAN Creation减艺设计 施工团队:北京世纪恒创装饰工程有限公司 拍摄:广松美佐江,宋昱明(北京锐景摄影) 联系方式:Tian@nazo-design.com
版权声明:本文内容由用户自行发布上传或投稿由设计芝士代为发布,版权归原作者所有,设计芝士不拥有其著作权,亦不承担相应法律责任。如果您发现本站中有涉嫌抄袭或侵权的内容,请点此提交工单进行举报,一经查实,本站将立刻删除涉嫌侵权内容。

