MATRIX DESIGN
旭輝·宸悅賦,承襲鉑悅基因,落地CIFI-6的產品理念,全國第二座宸悅系作品登臨句容。項目規劃有11層洋房及18層小高,整體規劃延續城市肌理,為句容帶來一線都會級的生活格局。
項目定位自然花園國際化社區,以基地周邊豐富的生態與文化資源為依託,結合景觀設計提升項目整體溢價。矩陣作為本案項目室內設計方,基於項目定位,立意於對未來生活趨勢的研判,以最切實、風情化的呈現與表達,將項目落地為一個具有沉浸式體驗氛圍的、現代簡約藝術空間。
|無花工作室花藝作品《容》 作品用竹片構建了“山和水”的形象,純粹而極具東方寫意的線條勾勒出整個空間關系。純粹幹凈的絳紅色做明暗變化,在光影中呈現出流動的力量感。四岸有所容,合為山水。
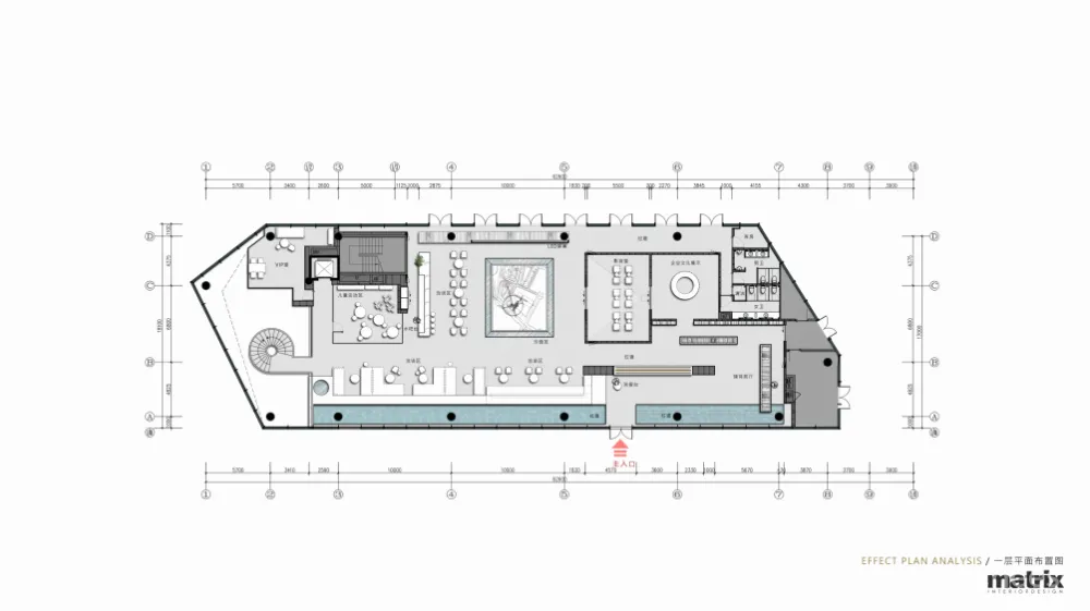
層層遞進 項目融入建築體量的空間感,採用現代的設計手法營層層遞進的儀式感,空間以一種“慢慢打開、層層遞進”的佈局來調動賓客情緒,一進前廳收心;二進展示臺,陣列式書牆“撼心神”;三進品牌展示館、影音室“解惑知新”;最後,才是情緒伸張最為開闊的大沙盤區。
異質碰撞 異質的碰撞與交融為藝術創作激發其靈感,迥異的材質與肌理,勞倫斯灰色大理石、黑金剛大理石,奠定了空間的古典藝術基調,古木紋大理石呈現貓眼綠寶石般的優雅。室內空間處處呼應,古木紋光面墨綠大理石,與前廳一整面的紅洞石做顏色的碰撞呼應,其光面感與旋轉樓梯處的啞光質地的紅色夯土質地又形成了一種粗細之間、宏大與微小之間的互動關係。
設計在這裏,以異質元素的碰撞與衝擊,再以色彩體塊的穿插點睛,強調一個以人居藝術為標本的、光怪陸離且多元文化的藝術空間。
光影之持 虛實之意,是空間流動感的重要表徵。矩陣設計利用光影的意象堆積展現“虛實相生”,在洽談區,整個空間通透而明亮,百葉間隙將光溫和地過濾進室內,人在空間內,望窗外的景,感受自然的饋贈,空間與自然,在靜謐中對話,歲月靜好的模樣,這也是當下高質量人居的要求與應答。
光影的加持,增了虛實之意,體現人文自然的和諧,光影隨藝術旋梯而上,暢快而大氣的空間氛圍感就悅動了起來,卻為宸悅賦平白又增多了些向上的張力。
項目名稱| 南京旭輝·宸悅賦銷售中心 業主單位| 旭輝集團 硬裝設計| 矩陣縱橫 軟裝設計| 矩陣鳴翠 花藝定制| 無花工作室 攝影公司| 釋象萬合 項目類型| 銷售中心 項目面積| 2000 ㎡ 硬裝造價| 4000 元/平米 軟裝造價| 2500 元/平米 主要材料| 義大利綠紋大理石、黑金剛大理石、勞倫斯灰大理石、灰色仿大理石瓷磚、黑白跟大理石、紅洞石、手繪仿紅洞石藝術漆、木地板、木飾面、本色鏡面不銹鋼、仿木紋地板膠、超白鋼化玻璃、磨砂玻璃、牆布硬包、藝術捫布、黑色拉絲不銹鋼、米灰色仿洞石瓷磚、馬賽克、深灰色仿古磚 、鍍鉻鏡、白色氟碳漆 設計時間| 2019.12 完工時間| 2020.08
矩陣首發|綠城·濟南誠園
矩陣首發|青島旭輝銀盛泰·星韻城
網紅打卡點熱潮下售樓處的新設計邏輯
以矩為方圓 萬物皆成陣
深圳市矩陣室內裝飾設計有限公司
Shenzhen Matrix Interior Design Co,Ltd 地址:深圳 福田保稅區 市花路福年廣場 B3棟411、413、420及421號 No.411,B3,Fortune Plaza,Shihua Road,Futian Free Trade Zone,Futian District,ShenZhen City,Guangdong Province,China 北京 朝陽區 廣渠路競園藝術中心18號 No.18, Jingyuan Art Center, Guangqu Road, Chaoyang District, Beijing 上海 黃浦區 瑞金二路38號2、3層 2nd and 3rd floor, 38 Ruijin 2nd Road, Huangpu District, Shanghai 成都 武侯區 高新萬科大廈6層625室 No.625,Hi-tech Vanke Building,Wuhou District,Chengdu,China 商務Marketing Dept. 電話Tel: 86 755 83222578 郵件Mail: zyd@matrixdesign.cn 人事Personnel Dept. 郵件Mail: hr@matrixdesign.cn 品牌Brand Development Dept. 郵件Mail: zhh@matrixdesign.cn 官網Site: www.matrixdesign.cn 微博Weibo: https://weibo.com/matrixdesign 微信公眾號Wechat: MatrixDesign矩陣縱橫
Creative design | Global opportunities | Award-winning projects

