该项目展示了Agua KMZERO公司办公室的改造,这是一个基于质量、生态、经济和邻近性概念的可持续水品牌。该办公室位于巴塞罗那Poblenou工业区的一栋1965年的建筑中。
为了使他们办公室的氛围成为他们自身身份的一部分,目标是在室内设计项目中体现他们的价值。一方面,我们试图使用可回收材料(生态),另一方面,我们利用原有工业建筑的所有元素(接近/经济)最后,我们使用玻璃作为寓言的水和增强和与其他材料(质量)。
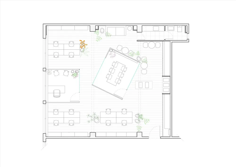
分布由透明的地板组成,这是房间的原始状态,我们决定引入两个盒子,因为客户需要的程序。一个盒子是给管理办公室的,另一个盒子是给会议室的。这两个盒子对主要的开放空间进行了分类和分配
值得一提的是,混凝土柱、金属梁和木地板等所有原有元素的保存和恢复。

白色涂料使空间充满自然光,绿色天花板是根据办公公司的身份来参照自然。最后但并非最不重要的是,对于人工照明,LED灯管由于其低成本和形式简单,被用作办公室每张桌子上的悬挂灯。

位置:西班牙
年份:2018
首席建筑师:Clara Ocana
摄影师:José Hevia

