“场景体验”是新消费时代的核心。在地产行业,原本功能单一的售楼处,通过设计师的思考与实践,而拥有具艺术与人文价值的场景。体验的优化随之而来的是品牌的认同,以及可期的更多人气和导流。

厚重与轻盈的平衡表达 西安,千年历史的浓墨重彩,留给了它文化的自信和诗意性格。本案位于长安区大学城片区,承载着西安人的青春记忆和人文情怀。 又因为是西安万科城的最后一个地块,而被寄望于借助设计的代入感,在当代西安树立起不同以往的“体验”示范区。

设计师以地域文化为背景考量,对古都的历史进行梳理,对人文的情感进行表达。结合城市新中产的客户定位,将设计重点落在如何以现代时尚感的笔法,去描述有历史余温的空间故事。

时光深处的记忆碎片 对于城市地块的演变历程,年轻群体的记忆多半是模糊的。 设计师以思考者的角色介入,用艺术化的视觉呈现,唤起都市人的记忆。透过情境背后的故事,与之搭建起情感的共鸣,也契合了品牌的营销策略。

在入口接待处,一幅原创定制的艺术装置画充当了背景墙,构筑出城市变迁的轨迹。七万个碎片深浅不一,以钢板和氟碳漆,组装成西安老房子的原貌。连同其它悄然分布的私属典藏,以温厚的质感和精致的细节,拉开方寸之间时空交错的序幕。

闹市一步之遥的安逸 取法园林设计中常见的圆门,使入口有别于现代建筑的生硬方正。柔和的弧线围合成创意的天井,制造别有洞天的吸引力。通高的玻璃幕墙与沿街相连,似一块天然的风景幕布。洒向室内的天光与线性灯带相呼应,时光在百褶窗的斑驳投影下悠然定格。




对于行走动线,设计师借道造园技艺的起承转合,以不同的层高营造情绪体验的起伏。室内陈设提取地域文化为素材,体块式的书架墙显现书卷气息,同时成为空间的隐性隔断。


浅色木饰面、灰色石材、质感扪布,低调而高雅的材质烘托出无压迫感的氛围,人们得以真正地静下心来,谈点事情。

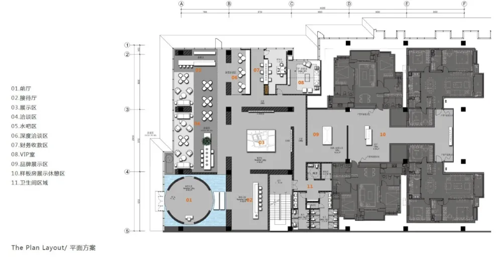
如园一案,以建造一座艺术馆的心力待之,希望艺术美学能够充当人文历史的切片,让有故事的空间成为一种文化自觉,承载都市生活的日常。 平面图 ▽
项目名称:西安万科·如园销售中心 项目设计:深圳壹方空间设计有限公司 项目地址:中国 西安
版权声明:本文内容由用户自行发布上传或投稿由设计芝士代为发布,版权归原作者所有,设计芝士不拥有其著作权,亦不承担相应法律责任。如果您发现本站中有涉嫌抄袭或侵权的内容,请点此提交工单进行举报,一经查实,本站将立刻删除涉嫌侵权内容。

