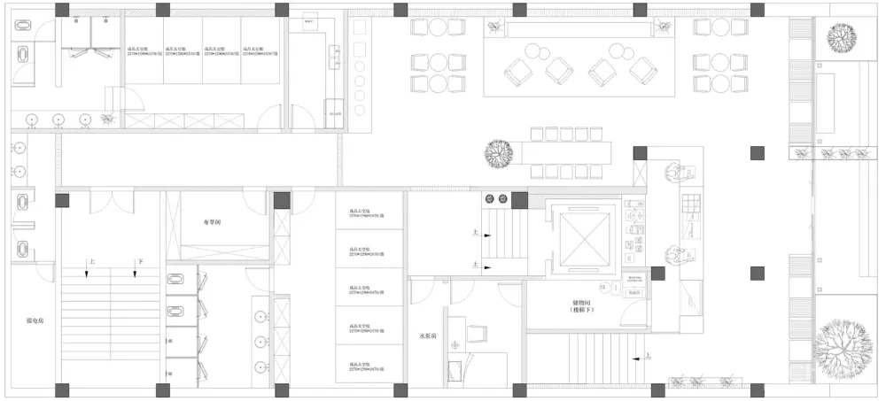
住在马达加斯加的热带雨林里:「蓝宇」位于一座大学的商业街旁,是一栋7层楼的酒店。改造前一楼大堂的四周是三面没有开窗的围墙,光线昏暗、格局拥挤且功能单一。在设计中我们将一楼的大厅打开,变成一个大堂、咖啡吧和餐厅相结合开放的空间。
将三种业态在空间中统一,打开的格局又能让充足的光线通过正面的落地玻璃洒进大厅,从而解决了采光的问题,并且多种业态的组合形成产生了社交的功能,成就了复合式的跨界酒店。
大堂中摆放的植物、墙面深浅渐变的绿色、热带雨林墙纸以及球形的柔光灯勾勒出轻松的氛围,客人可以在这里享受早、午餐或者是点一杯咖啡奶茶安静的度过一段美好时光。而大堂时尚的热带雨林氛围也深受年轻人的欢迎,一时间成为年轻男女争相前往的「打卡圣地」。
在大堂道路尽头的左右两侧,我们创造性的开辟了两间全新的业态——「胶囊公寓」,用于因开学、考试等时间段客房紧张的时候供客人使用。胶囊公寓分为男女两间相互独立,该区域内还设置了公共卫生间和淋浴房。
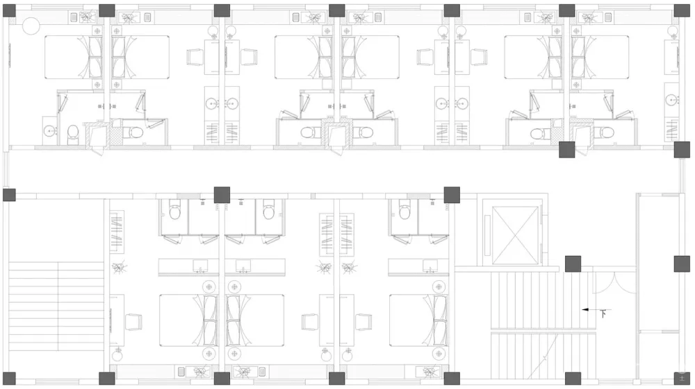
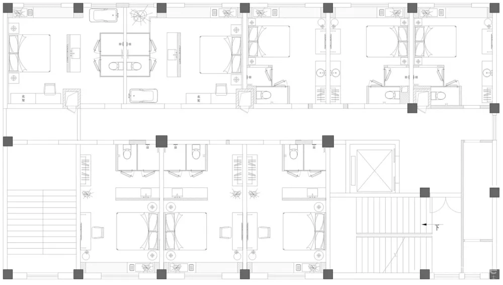
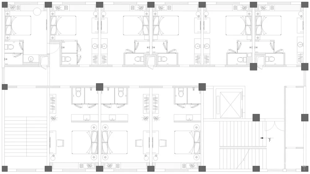
因为酒店原始建筑格局的原因,所以产生了一些小户型的客房。为了保证客户体验,我们针对小户型房间进行了重点设计。在保证干湿分离的前提下将卫生间和淋浴房尽量通透化处理,并将洗手池的位置和卫生间做了分离,把房间里更大的空间让给了床以及书桌,从视觉上显得更加宽敞,与此同时也让独立的洗手和圆镜成为空间的亮点。
「蓝宇」的设计创新同样体现在材料的选择上,耐脏的墙面环氧树脂漆、免漆桦木多层板、环保低成本的水泥自流平、以及用废旧水泥抛光成的水磨石等材质,无不体现着设计者对环保、实用的追求。









项目:「蓝宇 | 酒店 | LAN YU HOTEL」 地址:江西,南昌 主案设计:汪骏 设计参与:黄雅芬 | 黄灿 | 张禹 | 郑尧秀 设计单位:「工墨设计」 摄影:杨欣丹 竣工时间:2018年9月 面积:2800㎡+ 主要材质:墙面树脂漆、水泥自流平、水磨石、进口桦木多层板等
版权声明:本文内容由用户自行发布上传或投稿由设计芝士代为发布,版权归原作者所有,设计芝士不拥有其著作权,亦不承担相应法律责任。如果您发现本站中有涉嫌抄袭或侵权的内容,请点此提交工单进行举报,一经查实,本站将立刻删除涉嫌侵权内容。

