这个住宅位于乌克兰的利沃夫 面积为 45㎡ 由 Hrystia Koliasa 设计


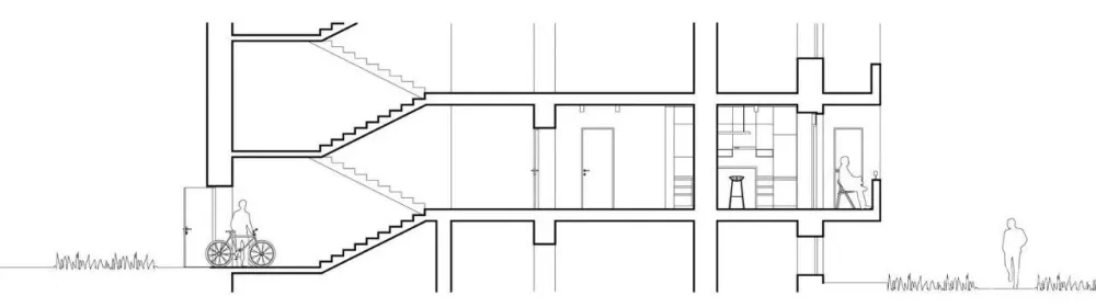
为了满足屋主骑自行车、慢跑、玩电脑游戏 烹饪、喝酒、与朋友聚餐的需求 设计师将不必要的墙面拆除 让整个空间呈开放式状态




客厅处利用木地板划分空间 裸露的水泥地面和柱子 搭配灰色的双人沙发 将粗犷与细腻融合在一起



白色的子母茶几 可随意拆分,更方便使用



厨房和餐厅连接,与客厅相邻 从落地窗透进的阳光 映衬在白色的室内 烘托出空间的精致与优雅感


阳台是打发闲暇时光的好地方 没有花哨的设计 让人一眼就能看到户外的景色 简约又大方


吧台做为隔断 将厨房、客厅、玄关分隔开 朝向厨房的一侧带有储物功能 可以放置各种厨房用具



另一边搭配白色的铁艺高脚凳 简单的色调,素净淡雅的风味 与灰色的水泥墙一起别有一番风味

卧室在客厅边与玄关并排 同样是白色调的空间


没有华丽的装饰 却有大量的储物空间 能满足屋主的收纳需求


卫生间的入口在玄关处 大面积的白色方格瓷砖铺满整个空间 定制的洁具,合理的布局分配 让小小的空间在视觉上显得更宽阔


马桶后凸出的位置 还能放卷筒纸、钥匙、手机等小物件


用玻璃隔出的淋浴区 在线条的勾勒下 既有维度美又有延伸感

项目设计:Hrystia Koliasa Architecture 项目地址:乌克兰、利沃夫
版权声明:本文内容由用户自行发布上传或投稿由设计芝士代为发布,版权归原作者所有,设计芝士不拥有其著作权,亦不承担相应法律责任。如果您发现本站中有涉嫌抄袭或侵权的内容,请点此提交工单进行举报,一经查实,本站将立刻删除涉嫌侵权内容。

