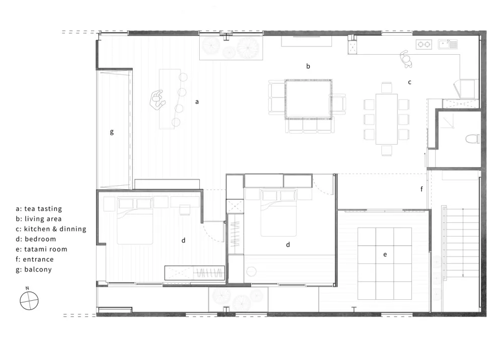
二楼,顾名思义,位于柚木家具展示厅的二楼。它是展览屋主人的住宅,可以俯瞰阳台上的展览屋。
该空间的设计强调柚木家具作为住宅也作为一个平台,展示他们的家具如何适应生活空间。浅色材料作为背景,突出柚木的深棕色。
由于原来的结构是用钢和铁板覆盖的,在空间中捕获了不希望传递的热量,屋顶和外墙都加强了隔热,在南侧和北侧增加了墙体开口,以应对夏季的高温。
二楼的布局允许交叉通风,尽管南侧有隔墙。利用空间的高度,卧室墙壁的高度在顶部有一个缺口,即使门是关闭的,也允许南北气流进入。
为了使气流从东向西流动,沿着卧室设置了一个偏置。它为卧室提供了一个扩展的半私密空间,在物理和视觉上扩展了空间。
屋顶和墙体材料的选择是根据不同的空间要求。天花板采用当地生产的木棉水泥板,为开放式的餐饮/生活/品茶空间提供了良好的隔音效果;榻榻米室内采用硅藻土墙面饰面,以调节封闭空间的湿度;OSB板被用作楼梯的墙面饰面,结合颜色赋予其高度深度。



位置Kaohsiung,台湾
首席架构师Wen Shan Foo, Chung Kai Hsieh Client Wenfung Furniture
设计Blacksmith NamiXII
面积200.0 m2
项目年份r 2017
摄影Milu Wang


