项目位于墨尔本市北部,项目的设计灵感源自中国传统风水理念,距今已有六千多年的历史。“风水”顾名思义,旨在通过一定的设计与规划手法,使建筑与周边环境和谐共存,营造宜人舒适的居住环境。“风水”的核心在于,依照自然的法则组织空间,使万物之间存在的能量流动到建筑中去。
Located in the northern part of the city, Melbournes design is more than 6,000 years old, inspired by the traditional Chinese practices of feng shui. Feng shui, as the name suggests, aims to create a pleasant living environment by means of certain design and planning techniques, so that buildings can coexist harmoniously with the surrounding environment. The core of feng shui is to organize the space according to the laws of nature, so that the energy that exists between everything flows into the building.
本项目体现了三个“风水”的核心原则。一是住宅的配置保证了建筑中的能量流动。第二,各种自然要素在颜色、材质以及形状上达成了和谐的平衡。第三,住宅内的家具和物品的摆放反映了人们的日常生活和活动轨迹。在本项目中,住宅的功能配置和建筑外观采用简洁的设计语言。核心的设计策略,在于建筑师使用“风水”的理念对住宅进行了更细致化的处理。
The project embodies three core principles of feng shui: first, the layout of the house ensures the flow of energy through the building; Second, a variety of natural elements in color, material and shape, to achieve a harmonious balance; Finally, the placement of furniture and articles inside the residence reflects the daily work and rest of people and the track of activities. In this project, the functional layout and architectural appearance of the house are adopted in a simple design language. At the heart of the design strategy was the use of feng shui to create more detail in the house.
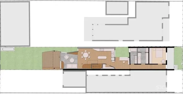
建筑师修复了房子原有的露台,在走廊的尽头建造了新的曲面墙,作为新旧之间的连接,隔绝了来自城市外部的视线。扩建部分与庭院分离,一方面为老建筑引入自然光,另一方面为新建部分提供良好的自然通风采光条件。延伸到露台的大厅,可以从室外进入书房。曲面木墙围出角落的休闲角落,并在厨房前形成流动空间,在这里,来访的客人们可以将书房和室外的庭院景观尽收眼底。
The old terrace was restored, a new curved timber wall at the end of the hallway works as both a link between old and new and a barrier to the street.The extension is separated with a courtyard for sunlight into the old, and natural light and ventilation into the new house. The hall linking terrace with extension was widened for a study with outdoor access. The curved timber wall, enclosing a store, leads into the kitchen planned to greet visitors at arrival and overlooking courtyard and study.
对于这个事件的设计师来说,最好的交互模式不过是巧合。通过精心的设计和布局,促进人们在住宅内的互动和沟通。从餐厅和休息室前面的砖造椅子上,可以看出设计师的设计。
The best form of interaction is the coincidental and the skill lies in planning the coincidence. Some layout and design decisions were made for this purpose evident in the brick platforms for seats facing dining space or lounge to allow for interaction.
休闲区后部是楼梯间,彩色的墙面反射着自然光。让整个楼梯间的下部空间明亮起来。颜色和材料层次化是墨西哥建筑师路易·巴里肯经常使用的设计手法,也是本案设计师最喜欢的设计手法之一。
Behind the store a stair void appears. The back is coloured reflecting light into the space below. Colour and materials only reveal themselves gradually, a design move often applied by Mexican architect Louis Barragan and one of my favourites.
餐厅设置在楼梯和厨房之间,是一个充满生活气息,引人注目的开放空间。餐厅的地板延伸到隔壁休息室的天花板上。在休息室里,可以欣赏到住宅内部、庭院、室外庭院等的美丽景色,人们的身心完全放松了。
Between stair and kitchen, we placed the dining room, a busy, engaging and open space, designed to encourage conversation. The timber floor of the dining continues into the ceiling of the adjacent lounge, a retreat with a sense of calmness looking back into house, courtyard and out into the garden.
住宅顶部有天窗,采光良好,更能感知阳光、雨露、风等自然元素的气息。这样的设定,让二楼的房间不受外部干扰的同时,也让远处的景观进入室内,在私密性和景观视野之间取得了项目的平衡。
The upstairs rooms, more exposed to sun, wind and rain are formed and finished to achieve a balance between shelter from elements and exploring views into the distance.
对于狭窄街区的经济型住宅来说,紧凑的建筑形式似乎是合理的,但这并不是最好的处理方法。休息室的墙壁有些倾斜,向外延伸。向餐厅介绍日光和庭院景观。楼梯井看似形成了一个大的空间,实际上楼梯之间设有入口,占地面积虽小,却充分被采用,成为一个舒适的生活空间。
For an economic house on a narrow block a compact footprint seems logical. However, logical is not always best. The lounge room walls were skewed and stretched, drawing sunlight and garden into the dining room. The stairwell itself forms a large void prioritising space over utilities. It appears oversized. However, the benefits are obvious: elevated beyond providing access, the stair creates a light filled and generous living space on a small footprint.
像任何一个建筑项目一样,风水住宅都努力在用户需求、经济成本、环境成本之间取得平衡。要想树立环保意识,就必须减少人工建筑。为了让这个理念被大众接受,作为建筑师应该用更简单的手段来提高建筑的质量。运用平衡的原则,慎重规划,正确把握空间和尺度,就能达成这个目标。
Like any building project, the Feng Shui house aims to balance user needs with cost, both financial and environmental. To build climate conscious requires building less, and in order to be accepted we need to build better qualities with lesser means. We trust this has been achieved by applying principles of balance, meticulous planning and playing with space and scale.
Steffen Welsch Architects为项目提供建筑服务,从建立项目概要到设计、规划、文件编制、施工和施工后评估。在他们看来,设计和施工是一个协作的工作。它开始于共同开发一个简要,着眼于功能需求,使结果独特的事物以及更广泛的环境影响和利益。设计“工作室”是在办公室里运行的,SWA的每个人都会收到你的项目简报,并尝试着解决问题。他们创建草图和图表,然后把它们带到桌子上讨论什么可行,什么不可行。这一概念得到了更详细的发展。他们要确保家具可以摆放,循环系统运转,猫有地方睡觉。重要的设计元素,如立面和材料组合,确保他们一起工作,看起来很好,可以保持。

