本项目位于荷兰乌特勒支市的一个名为Vinkeveen的小镇上普拉森山林中,是一个小型度假住宅设计,由建筑事务所i29 interior architects和Chris Collaris共同完成。
尽管该住宅的占地面积仅有55平方米,但其内部空间体验仍然十分丰富,置身于住宅中,周围的自然景观尽收眼底。这座布局紧凑的住宅是为一个四口之家设计的,包含一间起居室、一个厨房兼餐厅空间、一个室外庭院、三间卧室、一间浴室和两间卫生间。布局由内及外,合理且巧妙地安排了所有空间,没有浪费一丝一毫的场地。住宅坐落在湖边一个狭长的地块上,空间布局考虑了周围的水景和自然采光。最终,住宅整体由四个体量组成,每一个体量都享有美丽的自然景观和充足的阳光。从外部看,体量的体积大小错落,相互联系,形成了一幅雕塑般的画面,真正达到了“横看成岭侧成峰,远近高低各不同”的效果。为了加强这种雕塑感,所有的立面都采用极简设计,屋顶边缘和窗框细节都被隐藏在了木质外立面下。每个体量都有大窗户或是可以完全打开的推拉门,确保室内外空间完美融合。在室内,不同的空间尺度和天花板的高度清晰地展现出每个功能空间的特性。室外长方形的平台则提供了视觉联系。此外,只要将朝向室外庭院的推拉门打开,厨房体量和起居室体量就有了在庭院上的联系。
定制的家具和综合橱柜突出了室内的空间效果。建筑师使用简单的材料如天然橡木木板或黑色橡木板等,将其与粗糙的松木立面和光滑的混凝土地板系统相结合。建筑师希望这座住宅的室内外空间能够更好地结合。因此,每一个体量都有自己的功能。通过将内部的构件与住宅的体量彼此连接,最终产生了一个并不依靠昂贵的建材或是高超的技术便可以脱颖而出的高质量住宅。在每一个细节中,建筑师都致力于高效地利用空间,并创造出一个纯粹且统一的空间体验,从而给住户留下深刻的印象。本项目的设计师认为,高质量的项目并不总是“越大越好”。通过简单却巧妙的设计干预手法,尽管占地面积的限制很大,但本住宅仍是一个高标准、高能效的环境友好的项目。从这个意义上讲,本项目是小住宅设计的一个典范:它小巧舒适,功能齐全,室内外空间设计相辅相成。可以说,本项目是一个意味着“小即是美”的建筑设计方案。
















▼E-E剖面图
▼D-D剖面图
▼C-C剖面图
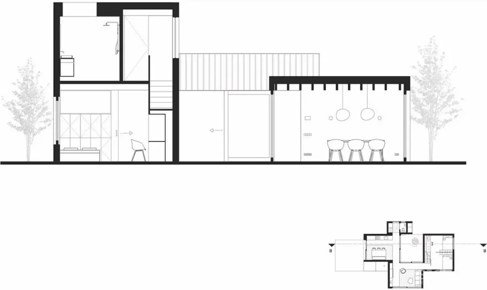
▼B-B剖面图
▼A-A剖面图
▼二层平面图
▼一层平面图
▼总平面图
▼立面图
▼项目体块关系图,住宅由四个大小错落的体量组成
设计公司:Chris Collarisi29 interior architects 位置:荷兰 类型:建筑 材料:木材 松木 橡木 混凝土 标签:Interior design Small and Delicate Residence Vinkeveen 室内设计 小而美的住宅
版权声明:本文内容由用户自行发布上传或投稿由设计芝士代为发布,版权归原作者所有,设计芝士不拥有其著作权,亦不承担相应法律责任。如果您发现本站中有涉嫌抄袭或侵权的内容,请点此提交工单进行举报,一经查实,本站将立刻删除涉嫌侵权内容。

