在繁冗的城市丛林中信步穿行,推门而入,是静谧沉稳的私属空间。本项目是一套复式公寓,屋主使用这套房子的主要目的是为了拥有独立专属的会客接待与办公区,既可处理冗杂工作,也可休闲品茗。
DESIGN SPECIFICATION
由于空间纵深较长,加之单一的采光面,使解决光线视野与空气流通成为了首要问题。在有限的层高下,如何拓宽户内空间的尺度感,塑造良好的空间体验,是本案重点攻克方向。
我们将靠窗面做了中空设计,为上下层引入流动的光与空气,同时消解了层高带来的局促压抑感。阶梯处做了材质划分,用黑色大体块旋梯作为焦点,载入“艺术装置”理念。廊道的设计,引用传统园林概念,让空间拥有一种在有限中创造无限的思维意境。
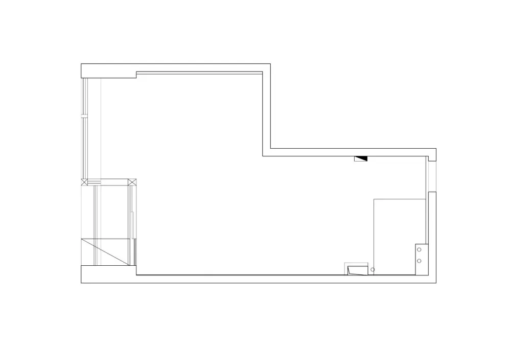
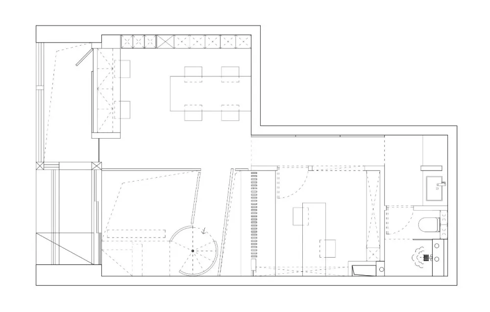
「 First floor 」
入户处由外而内延展的环抱式墙面弧度,赋予其如母体般的温柔孕育感,给予身心丰盈自得的心归愉悦。半掩间,引人入胜,指向探寻新的生活方式。隐喻着人与内心对话,摆脱束缚,归宁,归心。
会议区可容纳多人同时进行洽谈,层高限制下,将背景墙面的比例拉伸,兼顾空间属性的同时,感官尺寸被放大,一定程度上消弭了高度带来的压抑感。
空间以克制的暖色系微水泥搭配温润的木色作为主配色,开放式西厨,兼顾隐藏收纳。开放式布局确保了使用的包容性与灵活度,删繁就简的设计笔触,赋予空间张弛有度的生命力。
考虑到室内的采光感与互动性,在采光面一侧做了挑高设计,空间中水平和垂直的切挖,让视线、光、空气、声音、和身体运动流动起来。
简洁理性的黑色钢结构旋梯,与木材玻璃之间相互交叠与组合,平衡了三者之间的比例与面积,形成错落有致的阶梯体块,与其他区域冷静克制的纯粹空间产生视觉“冲突感”,拾阶而上,自有韵律。
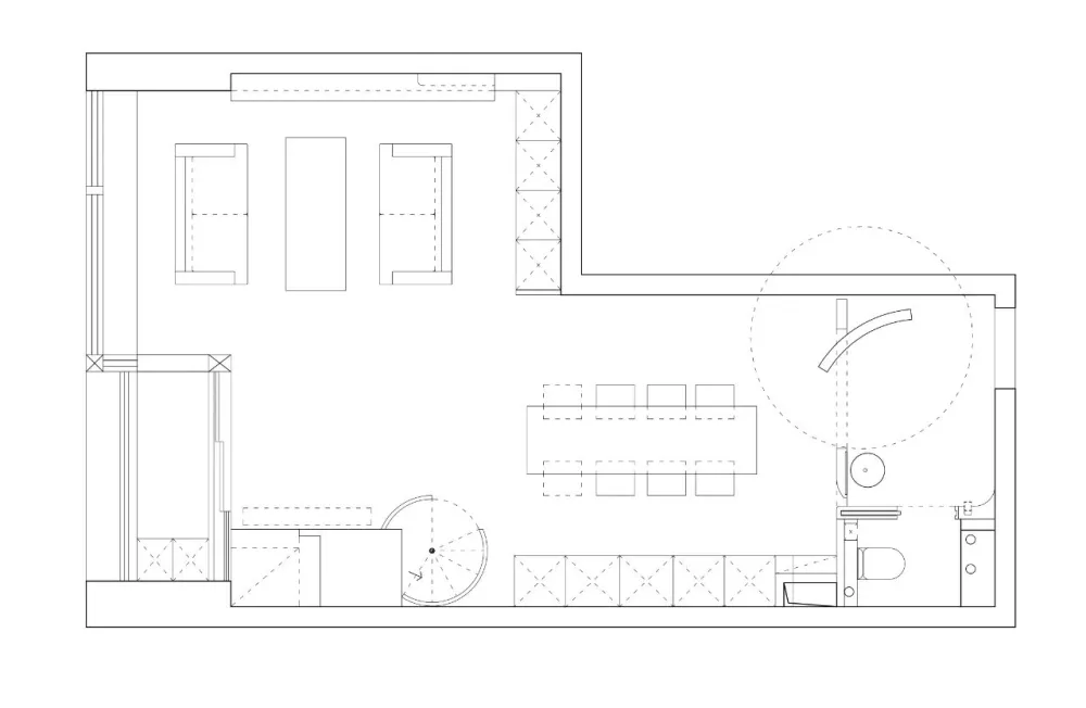
「 Second floor 」
二层空间引入“游园”的传统理念,营造出「非常规」的“廊桥”形态,在继承传统技法与精神的基础上,随于时代。此处,人的行走路径不再是单纯的封闭通道,而是一个值得品味,充满意趣的空间,强化方向感的同时也显著提升了空间尺度与层次。
剔透的家具免除来自空间高度的压迫感,黑色走廊引导走向独立的办公区与卫浴区。
极富韵律的木格栅与灯带,恰似行在山中感受到的林间闪烁,由于视觉受限,受限中又有透露,山外有山,景外有景,影影绰绰,无尽无休。
光线与材质色彩的明暗对比,让区域之间既连贯又独立,以此形成的完整空间,是恰到好处的融合与均衡。
将园林自然的空间复杂性投射到人的感官世界,此种设计语言映射于内向视野,在快节奏的都市生活中,打造出一方让心灵去休憩,品位、思考和领悟的天地。
涵瑜设计于2014年成立,主张以人为本的设计与落地。提供从前期“沟通咨询”到“设计创意”和“软装摆场落地”的设计服务模式。强调引导居者对于生活方式的确认与思考,专注于将人性化的美好设计渗透在日常里,打造使居者感到身心俱佳的当代宜居空间。
13528877127(小涵)
Wechat:xlhanyusheji(涵瑜设计-小涵)
QQ:3090691948
网址:www.hydsign.com
地址:深圳市福田区竹子林求是大厦东座2511-2513
2020 40UNDER40中国(广东)设计杰出青年奖 2020 HDA她设计奖年度优秀设计作品 2020第四届“BERYL”杯国际高端住宅设计大奖“十佳设计师” 2020金堂奖十年卓越人物奖 2020金堂奖年度杰出住宅公寓空间设计奖 2019营造家奖年度最佳大户型设计奖 2019第六届中国人文设计大赛芒果奖 TOP20 2019法国 INNODESIGN PRIZE 国际创新设计大赛(亚洲区晋级赛) 2019M 中国高端室内设计大赛年度影响力TOP100 2019年台湾《TINTA金邸奖》入围 2018中国美好生活空间设计大赛年度百强TOP100 2018M 中国高端室内设计大赛年度影响力TOP100 2018一兜糖最有温度设计师 2018好好住营造家奖提名奖 2018卡萨帝杯最具人气设计机构 2018卡萨帝杯设计精品邀请赛公寓类银奖 2017祝融奖设计大赛深圳赛区铜奖 2017鹏鼎奖设计大赛公寓类银奖 2017好好住全国最受欢迎设计机构 2017好好住营造家奖 2016鹏鼎奖豪宅类佳作奖 作品多次入选央视《空间榜样》节目精选案例/ 《现代装饰》、《瑞丽家居》杂志/ 《南方都市报》家居周刊专栏等


谢谢分享