上海的淮海路,是上海摩登街区的代表,被誉为「东方香榭丽舍大道」。随着众多国际品牌的入驻,古今脉络在此交汇,共同勾勒出当代品牌的人文底蕴与新鲜面貌。
这其中,便包括丹麦品牌ECCO,将「使行走成为一种乐趣」作为设计哲学的鞋履及皮具品牌。这家全球旗舰店突破低调柔和的品牌印象,成为品牌形象升级的突破口,力图把创新、科技、舒适的理念传递给全世界。
△建筑立面 摄影©谭啸 / 十摄影工作室
对于这家有着里程碑式意义的全球旗舰店,红山设计引入了「都市梦境」的概念,通过人文、历史、科技等多重维度体验去重构人与物之间的关系,由此激活社区互动,领略品牌的视野、美学与精神。
△ECCO全球旗舰店视频 制作|花生工作室
设计师将旗舰店构思为一个以光与金属为系统的概念空间,有自身独特的结构语言,挑战现实与幻想之间的感官认知。
艺术装置由美籍华裔艺术家JUJU WANG创作,以ECCO工厂为灵感,营造出艺术无限延展的维度,让访客沉浸并迷失在空间矩阵之中。
△ECCO工厂实景(上)与艺术装置示意图(下)
图片来源|JUJU WANG
谭啸 / 十摄影工作室
钢材的反射使装置变得轻盈与灵透,迥然的材质与感受迸发出矛盾质感,共同呈现出理性逻辑与艺术感性结合的独特表现方式。
谭啸 / 十摄影工作室
金属和镜面的解构在空间中产生丰富的切割感,将传统工业与当代艺术进行诗意碰撞,隐喻ECCO从皮革到鞋履的工艺流程。
空间底色涂覆着混凝土质地,简练纯粹的线条和留白平衡了金属光泽的锋利,更显科技机能之美与空间张力。
谭啸 / 十摄影工作室
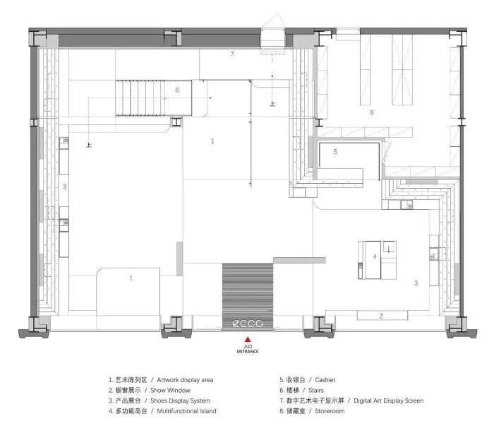
不论是糅合科技趣味的经典款展陈区,还是具有前卫艺术之美的装置,ECCO全球旗舰店以全新的陈列语言,营造出打破商业与艺术边界的概念空间。
设计师使用颇具趣味的传送带展示鞋履,以此削弱营销目的给消费者带来的攻击性。
皮质水吧台亦是空间焦点,通体由ECCO高科技DYNEEMA皮革制成,令消费者能渗透式地去体验空间及ECCO对高品质皮革的追求。
△展示楼梯廊道 摄影©
谭啸 / 十摄影工作室
金属楼梯蕴涵着空间张力,设计仅施以简练纯粹的线条,室内墙面则用多层次喷漆涂覆雕塑性的机能与美感,多媒体墙面附以科技调性,将整个场域浸入未来感的气息。
以多层次的光强、隐秘的光源以及科技感的灯具营造出光感氛围,创造出如梦亦真的情境,启发观者的五感体验。
△展示楼梯廊道 摄影©
谭啸 / 十摄影工作室
互动体验演绎多维元素共融,共创科技履程,展现ECCO对科技与艺术的接纳与创新。
谭啸 / 十摄影工作室
充满生机的青绿色预示着ECCO正带着蓬勃的生命力,为消费者带来耳目一新的体验。
楼梯顶部与侧面缀满ECCO的金属蚀刻logo,将品牌印记幻化为一种艺术符号,低调而又极富存在感地交织在空间之中。
△ECCO品牌logo推演过程
谭啸 / 十摄影工作室
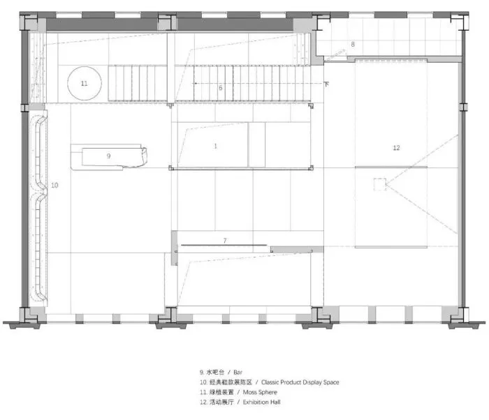
绿植装置让这个场景感受更加公众化,并非纯粹的营销空间,而是令体验者感到安心与舒惬的城市景观。
谭啸 / 十摄影工作室
艺术家JUJU WANG受到ECCO品牌理念的启发,以自然界中运动浪潮为灵感,捕捉水面、风、树木、开阔的田野上流动的韵律,将其凝缩并固定,形成独特的视觉体验。
△皮革装置概念来源于ECCO品牌影片
JUJU WANG 基于对自然现象的观察与反馈,通过透明的皮革条纹模拟了生命的流动态势。打破认知的材料与设计,赋予我们观看与理解这个世界的全新角度。
谭啸 / 十摄影工作室
运用180平米透明皮革,挑起观者对皮革原有的感官认知,通过材料关系与空间形式的层层矛盾感,建立颇具戏剧性的商业空间体验。
△ECCO所使用的透明皮革
—— JUJU WANG
谭啸 / 十摄影工作室
艺术装置有着惊人的悬浮感,以贵金属微雕工艺体现科技给予人们无限的可能性。
对比传统的零售空间,设计师希望通过自由的动线、交互的形式,给予消费者更开放的体验。展示屏通过下方端口达到交互效果,增添游览趣味,弱化商业的攻击性。
谭啸 / 十摄影工作室
大小不一的齿轮犹如音符般跃然空中,配以苔藓背景墙,以柔和的方式展现科技氛围。
波普艺术大师安迪·沃霍尔曾说,艺术商业是商业的下一阶段。从悦人到悦己,消费到体验,艺术成为了商业空间中的精神食粮,让消费者可以欣赏共鸣。如梦中所见,让观者拥有更多想像空间。
项目名称 | ECCO全球旗舰店
项目地点 | 中国 上海淮海路
设计公司 | 红山设计 / HONG Designworks
主案设计 | 党明/李丹笛
设计团队 | 解旭 卢梦怡 王青 吴虹烨 董斯然
艺术装置 | JUJU WANG
实施团队 | 深装总建设集团股份有限公司
项目面积 | 420m²
完工时间 | 2021.3
项目摄影 | 谭啸 / 十摄影工作室
项目视频 | 花生工作室
红山设计(HONG Designworks)创立于2002年,是一家立足于本土,具有国际化视野的多元设计公司,致力于为前瞻性客户提供国际领先的高品质设计。服务领域涉及办公、商业地产、精品酒店、康养与医疗、公共文化类等多种类型空间。HONG Designworks提供前期策划、室内设计、灯光设计、软装设计、标识设计等设计服务,用精准的把控来实现高效的项目落地,以专业的服务和前沿的设计呈现具有时代精神的国际化、多元化作品。
红山设计创始人兼首席设计师
曾赴德国杜塞尔多夫专业研修,师从德国设计大师赫尔弗里德·哈根拜格教授,同时执教于西安科技大学艺术设计学院。融合国际化视野与本土积淀,善于将艺术美学注入室内建筑,创造激发感官体验的城市空间。亦常审视时代背景下的设计责任,以高效而可续的完成度,成就作品的价值高度。
党明先生获邀担任国际顶尖赛事荷兰Frame Awards 2021届评委,曾被评选为亚洲地区的40位40岁以下最具有影响力的年轻设计师之一,荣获2017中国室内设计TOP100以及2013中国室内设计卓越成就奖,其设计作品曾被德国KLINGSPOR MUSEUM OFFENBACH博物馆收藏,入选2010德中设计双年展。HONG Designworks众多作品屡次斩获国内外设计大奖,包括2021红点奖,2019德国IF设计奖建筑和室内类别大奖,2019荷兰世界建筑节INSIDE室内节办公类大奖,2019意大利A design国际设计大奖银奖等。

