一个注重人文情怀的现代室内设计社,分享简约、独特、富有个性的空间设计!用专业的经验帮助您,在这里,您可以获得全面的室内设计服务。
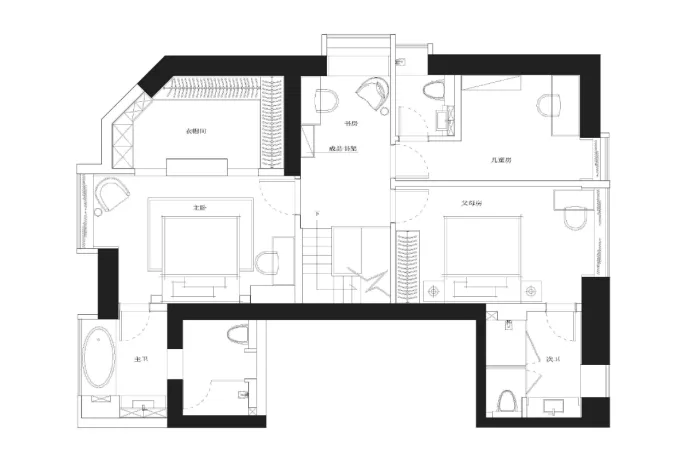
这是一套160平米的复式房子,整体以现代风的空间,天花采取无主灯的设计,结合深色的护墙板背景墙等设计,再加入一些深色端庄的家具,营造出一个成熟稳重的居住氛围感。
▲现代风的客厅,天花在无主灯的空间下,加入一圈的黑色金属线条,并在四周藏入灯带装饰,下方布置灰色地毯与沙发,整个空间显得简约舒适。
▲沙发墙以深灰色的背景墙设计,布置灰色布艺沙发,在灰色素雅的地毯之下,布置黑色的茶几,还有布艺休闲椅与凳子,整个空间显得简约舒适而端庄大气。
▲沙发并非直接靠墙,后方还有一个小过道,布置实木斗柜、柜台上放着玻璃花瓶,沙发墙上还挂了一幅装饰画,黑白画面加入橙色点缀,也显得更加有现代活力感。
▲令人舒适轻松的布艺质感,在明亮的空间采光下,惬意舒适而自然。
▲电视墙以浅灰色的硬包,布置yge复古调的电视柜,右侧就是楼梯区域,角落布置着吉他,让空间显得更加灵活有趣。
▲餐厅与客厅保持连通一体的空间,餐厅旁边就是楼梯,布置深色的餐桌椅与黑色楼梯踏步一致的色调,让空间显得更加低调高级。
▲餐桌挨着大理石中岛台布置,中岛台 吧椅的组合,餐桌上还有花瓶装饰,让空间显得更加优雅情趣。
▲深色的餐桌椅组合,布置花瓶、杂志与杯具,也让用餐空间显得更加端庄华丽而精致。
▲楼梯就设在电视墙旁边,木质踏步 玻璃扶手的设计,显得格外的现代时尚而精致高级。
▲“回字形”的楼梯狗仔,墙面是水泥灰色彩,楼梯踏步加入暗藏光源的设计,也让空间显得更加层次有趣。
▲卧室整体以咖色的墙面,天花在无主灯设计的吊顶上,加入一圈黑色金属线条,增加空间的层次与档次感。布置黑色实木床、床靠背是灰色布艺材质的,床头墙上挂一幅简洁的装饰画,而衣柜与房门则是采取灰色的材质,让空间显得更简约低调。
▲灰色布艺床头靠背 实木床架的设计,床头柜是一个树轮造型台面设计,也使得空间更加极简高级。
▲次卧以木饰面的床头背景墙,布置灰蓝色的实木床、淡蓝色床单,床头柜也是创意造型的设计,整个空间显得安静简约而舒适惬意。
▲卫生间以大理石材质的空间,悬空安装的洗手台盆,大面积的镜柜,镜柜下加入暗藏灯带设计,整个空间显得现代时尚而实用。
▲卫生间靠窗装一个椭圆形的大浴缸,也提供了一个享受轻松的泡浴空间感。

