项目地址 | 广州市天河区
设计内容 | 室内和灯光设计
室内面积 | 180平米
室内设计 | LUKSTUDIO芝作室
项目团队 | 区智维、沈思韵、吴敏仪、丁怡人
设计时间 | 2018.12-2019.05
施工时间 | 2019.06-2020.03
主要材料 |花旗松实木板材(Dinesen)、褶皱肌理墙砖(Mutina)、地砖(Mosa)、灰色砾岩(Belle Stone)、艺术漆(Dineno)、风琴帘(亨特窗饰)、水磨石(奇雅特)、洞石、白色卡拉拉大理石、马赛克、调光玻璃、香槟金不锈钢
厨房橱柜 | Bulthaup
活动家具 | Minotti、Brdr Kruger、Kettal、Moroso、Zanotta、Flou、GT Design
灯具品牌 | 大烨照明、iGuzzini、Cattelan Italia、Vibia、Davide Groppi
洁具品牌 | Agape、Vola、Duravit
智能系统 | Control4
摄影 | Wen Studio
除特别标注,本项目照片均由Wen Studio提供
在这间公寓的设计中 芝作室与业主针对「适度设计」进行探讨 剥离所有无谓的装饰 专注空间最本质的功能性 以自然光线和天然材质 打造出度假屋般自由而舒适的体验 让久在樊笼里的生活重返自然
本项目是广州一间高层公寓,业主Peter与芝作室一样,钟情天然的材质和实用的简约空间,敢于突破传统设计思维。 双方此前合作的“盒里盒外:Atelier Peter Fong”项目完成了老旧社区商业化改造的挑战。此次,这对老搭档要在一线城市的闹市区,打造一个度假屋般静谧而舒适的家。
设计师首先调整平面布局,拆除原有书房和封闭式厨房,让照进南侧窗子和洗衣房的自然光延伸到空间核心区,将昏暗逼仄的感觉一扫而空。
△改造前的玄关与核心区域
△改造后的玄关与核心区域
新餐厅和开放式厨房就放置在这块敞亮的区域里,使其成为一个连续的多功能空间,承载着一家人烹调、进餐和临时办公等日常活动,窗外江景的引入也烘托出适宜冥想和休闲的氛围。
△双面开放式厨房,可容纳2-3人在灶台两侧同时备餐
核心区调整完毕,一条紧挨玄关的宽敞走道成为公区与儿童房之间的新动线,交通更为顺畅。走道墙上量身定制有白盒子样式的整体壁橱,以维持空间的纯净有序。
△白盒子上“掏”出三个功能各异的壁龛:临入口处的壁龛用以坐靠换鞋,同时展现迎客示好的姿态
△转角处“缺口”用于展示藏品及增强公区的视觉联系
△狭长壁龛放置花艺作品,成为走道转角一方可随心更换的小景
公寓原装修多用深色木板、大理石、吊顶石膏线等材料,迎合传统“奢华”品位。 在这间公寓中,天然材料才是主角。设计师用花旗松实木板包裹公区和卧室的天地墙,制作置物架、卡座、餐桌、床架等家具,借由天然的木色、纹理与清香,让各空间传递出返璞归真的度假气息。
△晨光照入室内,渲染出度假小木屋般的氛围
△搁板置物架由28毫米厚的实木板制成
△三角瓷砖及槽纹面板,增加空间秩序感
△客厅所用的洞石材质,带来岩土的自然质感
△改造后,崭新的多功能餐厅
△有机与有序的对比 ©LUKSTUDIO
△木板的纹理“流淌”在墙面与桌面上 ©LUKSTUDIO
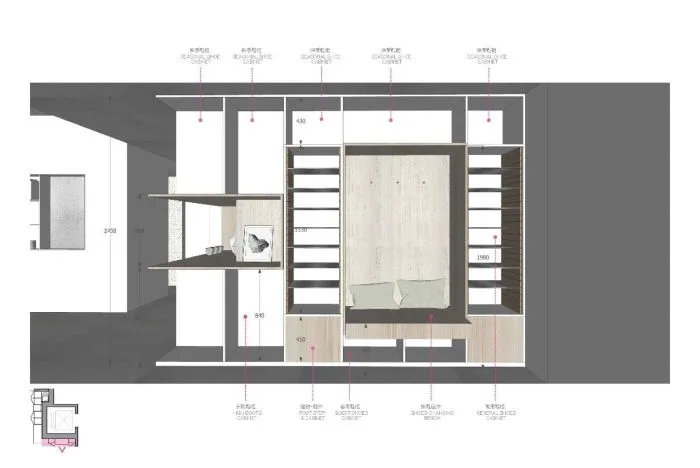
卧室区的设计根据家庭成员的喜好和需求而定,在度假主题下打造出自在的个性天地。 原西南侧两间卧室被合并成一间50平方米的主卧,新增步入式衣帽间和调光玻璃围合的浴室,电视墙左侧飘窗搭配沙发变成观景平台,右侧飘窗借由隐藏式家具构筑出女主人的梳妆空间,各区域互不干扰。
△关闭调光玻璃,通透的空间显露出砾岩墙的精美质感
△启动调光玻璃,光屏围合出隐秘的浴室空间
公寓西北侧是儿童房,是一间由花旗松木板搭建的梦幻“小树屋”。屋内定制有可调节高度的书桌、搁架以及大量的隐藏储物柜,为小主人的身心成长提供安全、舒适和可持续使用的空间,培养他的动手能力和天马行空的想象力。
△光影与质感交织的瞬间 ©LUKSTUDIO
芝作室由陆颖芝女士于2011年创立,是一支植根上海,致力于实现精品设计的团队。团队成员来自世界各地,有着多元化的背景与视角,但都拥有一颗挑战现状的心。 秉承“万物皆可改变”的理念,芝作室在每个设计项目中不断尝试,追求突破,希望创造更精致的空间与更有趣的体验。经过一系列小型项目的锻炼,芝作室累积了许多实践经验,总结出自己的品牌精神:深入挖掘项目场地的独特性与可塑性,以最少的干预营造出最佳的空间体验。

