© 福州造美室内设计有限公司
马鞍基督教堂位于福州东坑巷35号,自然保护区、五凤山公园入口处。建筑面积为335㎡。从建筑到室内空间、设计师都以十字架为中心,建筑外观采用十字架丰碑艺术手法。
▼建筑外观 ©福州造美室内设计有限公司
▼入口处的十字架 ©福州造美室内设计有限公司
室内以自然通风采光为重点。
透过天光普照圣堂,木色的家具、让身在其中的人感受圣堂的神人合一。
▼入口处的储物柜 ©福州造美室内设计有限公司
▼入口 ©福州造美室内设计有限公司
▼礼拜堂 ©福州造美室内设计有限公司
▼台阶与木质座椅 ©福州造美室内设计有限公司
▼阳光透过立柱照入空间 ©福州造美室内设计有限公司
▼细部 ©福州造美室内设计有限公司
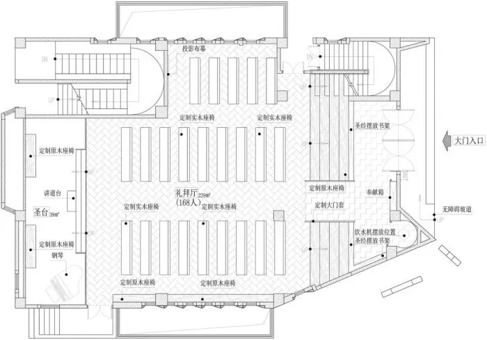
▼平面图 ©福州造美室内设计有限公司
项目名称:福州 马鞍基督教堂 设计方:福州造美室内设计有限公司 联系邮箱:
86985514@qq.com
项目设计-完成年份:设计完成2020年3月-项目完成2021年3月 主创及设计团队:主创设计师李建光先生 项目地址:福州东坑巷35号 建筑面积:335㎡ 摄影版权:福州造美室内设计有限公司 合作方:福州造美室内设计有限公司 客户:福州花巷基督教会

