来自建筑事务所的描述:该项目来源于使用者对于新住宅的期待,使用者在老住宅中居住了很长一段时间,希望这座新住宅简约现代,且舒适,项目场地位于相当密集的住宅区,规模并不大,因此这对于建筑师而言,既是机遇,也是挑战,因为住宅可以通过两个方向进行美化,同时又能够拥有充足的日照,经过了仔细的思考,建筑师构思了简约的几何体量,并且进行了详细的设计,其中结合了许多有趣的元素,比如立面上的木材、瓷砖,以及钢材。
但是,在施工过程中应用混凝土是最为适合的方式,混凝土面板基础能够尽可能地减少对于周围建筑的损坏和影响,建筑两侧有着阳光的直射,尤其是西边,因此建筑师构思了减少热量的措施。
比如木质百叶、花盆、衣柜、工作室、浴室等等,这些设计策略都很成功,让房间在不使用空调的前提下,都能拥有舒适的温度,这座建筑受到了日本现代住宅的设计策略的影响,比如空间的高效布局,建筑师应用许多开口来增加自然采光与通风,建筑的室外区域应用了禅宗花园和许多木材,从而减少后期的维护需求,无论室内还是室外,木材的应用都很充足。
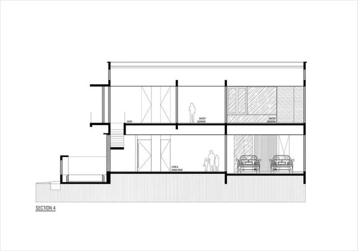
在这座住宅中,最优先考虑的空间则是客厅区域,它与餐厅相互融合,构成了半公共区域,这个区域有着滑动门,和外部院落直接联系,因此这个区域也有着充足的视野,但仍然拥有安全感,因此来自外部的视线无法进入到室内,让使用者能够感觉到私密性,建筑的墙体上应用了简约经济的材料。
砖石墙体为手工制作而成,这也是主要的要素,这来源于建筑设计与室内设计的相同理念,其中或多或少地应用了Wabi-Sabi原则,那便是在不完美的事物中,人们能够很好地欣赏美学自身。这座建筑在一开始就经过了深思熟虑,这也是使用者和建筑师的首次合作,但是这次合作非常愉快且和谐。
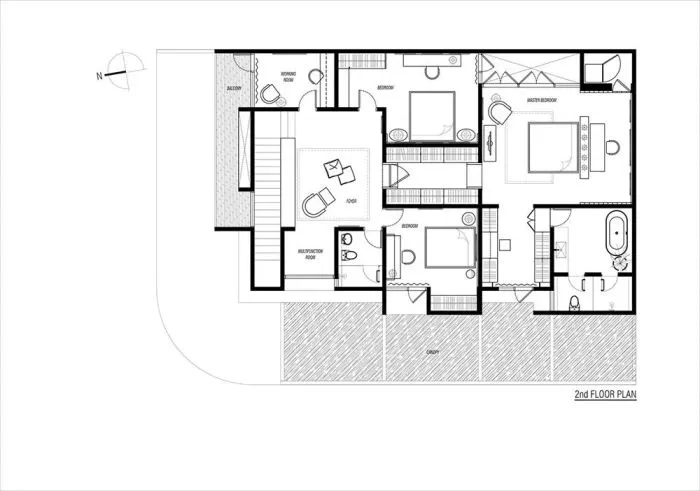
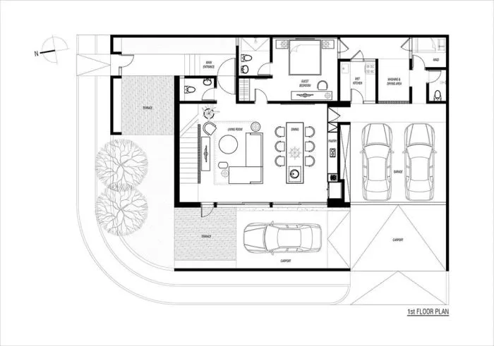
建筑设计:y0 Design Architect 类型:住宅 面积:427 m² 时间:2021年 摄影:Antonius Widjaya 制造商:Toto, Architectural Software, Duma, Icon Spirit, Lightvolution, Lines Concept, Mowilex, Propan Ultraproof, Re-holz, Roman Ceramics, Ubin Kayu, Wina, Wisma Sehati, YKK aluminium 承包商:Budy Limandjaya 施工管理:Juni Hadi Ishari 室内设计:Valdy Wijaya – Valvonne 景观设计:Dimas 灯光设计:Lightvolution 城市:Sidoarjo 国家:印度尼西亚

