Courtesy of K59atelier
来自建筑师。 Claude Levis Strauss在描述他前往新大陆的旅行时提到了“场所”的概念。在那个场所,原始生活依然与现代世界的发展互为平行的关系。“场所”有“安顿下来、出生场所、传统文化或者栖息”的含义。通常情况下“场所”会与人、文化、生活习惯和自然条件产生联系。而每个领域都会有其独特的特性和标志。
Courtesy of K59atelier
Courtesy of K59atelier
居所在最早期的建筑定义是能为人遮风挡雨的空间。经过几百年的发展,根据各区域人与自然的特性特点,人们发展出了各地独特的建筑风格。胡志明市是一个低地,当地的热带季风性气候使得季节变化明显,雨水和阳光充足。随着社会的发展,胡志明市的建筑形态逐渐形成了一套具有当地特点的建筑风格:建筑充分满足热带气候和当地人的生活习惯需求。
Courtesy of K59atelier
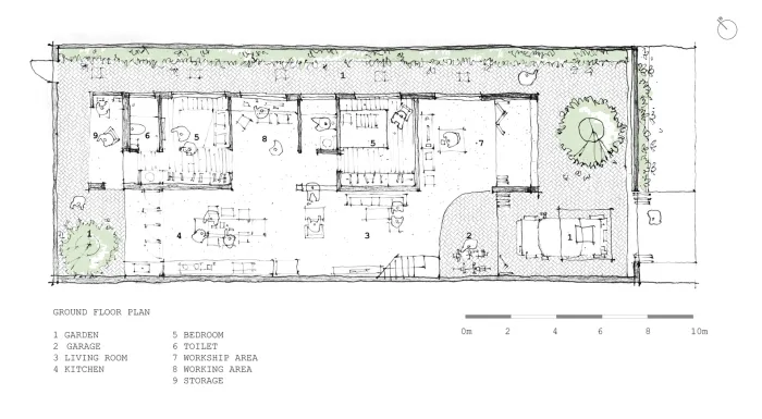
该项目位于胡志明市的城乡结合区。需要满足三代人长期居住在该别墅中。别墅有一面很大的屋顶。屋顶的材料是象征着家族记忆的赤土陶器,这种材料也同时代表着越南古代城市的缩影。该项目由5个相当重要的元素:
Courtesy of K59atelier
阳光 两个体块:空心体块和实心体块象征着太阳光的两个方向:西方和东方。这个方案可以解决位于别墅东部中卧室阳光直射的问题。
Courtesy of K59atelier
风 将传统房屋的坡屋顶形状作为研究的起始点,风可以通过倾斜的屋顶和天厅进入到屋内并到达屋顶最高处。百叶门的应用使得房屋中的自然通风更加流畅。
雨 隐藏的蓄水装置(位于混凝土梁的内部)可以收集到大量的房屋落水。这些水可用在花园中。同时完成后屋面还可以作为给孩童们展示如何蓄水的屏幕。
Courtesy of K59atelier
树 别墅的前院和后院都有一条绿带将清新的自然环境引入到别墅中。
人 人是别墅中最重要的元素。别墅中的生活空间将几代人的联系在一起。在设计师看来,健康的家庭关系是由社会的可持续发展开启的。
结论 现代的生活方式不仅仅局限于将人与自然完全隔离开来,然而生活在一个阳光,风,雨水,树之中的和谐环境对于现代生活方式而言更加重要。设计师在仔细地推敲了房屋类型与周围环境的之间的关系之后,设计出了现在所看到的与周围环境完美契合的建筑形态。
Courtesy of K59atelier
建筑师 K59atelier
地址 Phước Kiển, 越南
主创建筑师 Phan Lam Nhat Nam + Tran Cam Linh
设计团队 Phan Lam Nhat Nam, Tran Cam Linh, Nguyen Phuong Thao, Vo Ngoc Thanh Tuan
建筑面积 250.0 m2
项目年份 2018
Category 独立住宅
厂家 加载中……

