项目名称:ggget杭州家具展厅
项目类型:商业空间设计
设计面积:500平方米
竣工时间:2020年11月
设计公司:QHD Studio
设计团队:邱淑怡、陈玉、杨鹏飞、李东、王音
灯光设计:QHD Studio
项目主材:艺术漆、地坪漆、烤漆铝板、镜面
工程团队:杭州安宁装饰工程有限公司
时间和空间是哲学永远探索的主题。爱因斯坦相对论认为,空间和时间可以相互转化,时间是空间的另一种方式,空间和时间就是不可分割的整体。

探索,从来都不是一个简单的词语,期待一场ggget的专属探索之旅。


入口处整体统一简洁,精简logo在墙上的尺度,不过分烘托商业气氛,椭圆形的洞口增添了趣味性;鹅黄色的使用营造温暖的商业空间氛围,拉近了客户与商业的距离感。


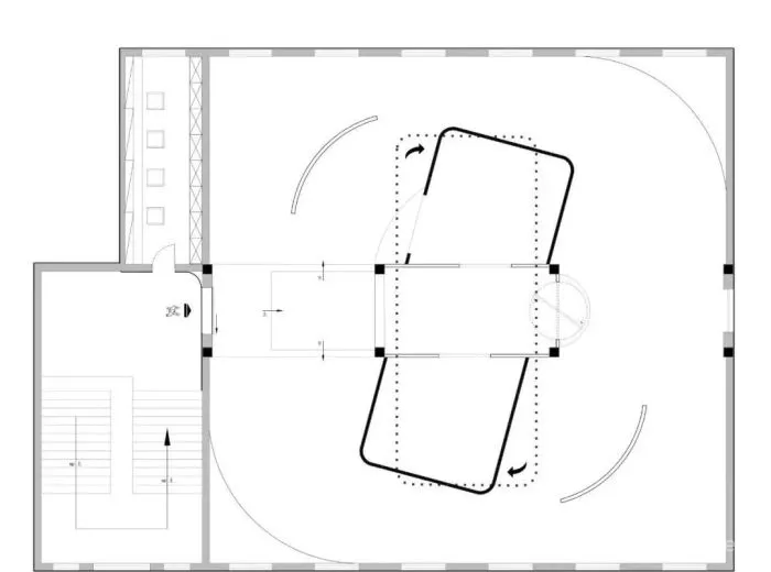
中心盒体旋转15°创造了不规律的空间,它既是独立的,又和空间相互交融。自然而然带动着空间的节奏,同时保证空间使用的流动性与灵活性。
错落的体块与方正的柱体结构形成趣味的夹角,它是舞台的主角,自成焦点,即凸显个性化,又具有视觉穿透力。



既完成了场地与单体建筑的融合,又带来功能与形式之间的有机结合;主体的错落和墙体的开洞被赋予了一定的个性,焕发着重生的魅力。



ggget作为新生的家具品牌,打破传统商业模式,自我塑造出更加独立的品牌,去除繁冗的修饰,留白也是一种思考状态。自然变幻的光线下,帮助空间表现其本质的魅力,让光成为不可或缺的一部分。



不同尺寸的圆形开窗,给予视觉上的探索,让整个结构呈现开放状态;建筑就能变成一个无限空间,来灵活适应不同的场所和功能的需要。


以一种尽可能开放的空间去承载生活的联系,每一个产品都能在这里得以解释。作为载体的容器,它具有包容万物的能力。


圆形元素延伸到室内的整个空间,以椭圆形为视线范围框架,取自然风光的美景;不同的角度提供无数种画面,观察就变得更耐人寻味。
同时引入光线的照射,充分利用光和外部的视野;家具产品和空间氛围相互烘托,提供一个沉浸式的家具艺术体验馆。使空间回归自然舒适的状态。

光能凭空造型,勾勒出物体的轮廓;也能打破造型,分割僵硬沉重的空间。



展厅作为载体的容器,由纯粹的造型、单色的材料、明亮的质感打造,为在规整的布局和有限的面积中寻求突破。


细节处增添镜子反射的原理,增添纵向延伸感,赋予空间灵动性。
QHD保留了原始砖面的肌理以及原木屋顶结构,在此基础上进行改造创作,历史感和新生品牌的碰撞,是东信和创园本身具有的特色;正因为如此才更具有吸引力,是一场心灵上的感知和视觉上的旅程。


高低各异的圆形小洞口,通过不同高度的向内窥探,同时带着一定的好奇心,想一探究竟的欲望,强化游览者的印象记忆,有不一样的空间体验和思考方向。



结合ggget的形象定位,并不需要密集的陈列区域,在设计中以动线清晰为主。在陈列细节上,使参观者本能的关注到产品本身,让产品原有属性发挥到最好。


QHD设计的出发点基于在有限的层高内最大化利用空间,将售卖、展陈、会议、待客等多功能区域化;去除对余的装饰化构件,从而达到功能和视觉统一简洁的空间美学。

ggget希望在此拥有属于它独有的温度和记忆。


关于QHD Studio

施权洪——QHD Studio 创始人、设计总监。英国伦敦艺术大学 ISD空间艺术硕士。
QHD Studio ——基于国际化的视野,致力于专业的空间前中后端综合服务,着重空间艺术与生活化的理解去营造场所。设计团队秉承四个核心理念,探索创造 平衡 生活为主导。以人为本,探索人与空间的行为关系为根基,以空间美学研究作为植入方式和手法,创造独特的艺术视觉与体验空间,以项目实际需求出发,思考商业与设计的良好互融逻辑关系,增强产品附加值。同时着重加强设计,艺术相关行业的跨界联系。

