 
 
△潮起浪平月近人|摄影
一座面海的城市,青岛伸出
触角吸收海洋带来的异国文化,欧式建筑与既存汉儒文化形成独特的中西交融美感。
 
 
迎海景的华润科创中心,处于优越的海港地域位置,负责空间造型的水相设计设计师,欲透过建筑构造呈现浪涛跌宕的自然壮阔感。两层楼建筑环景玻璃帷幕由外观之,透见室内纯净流畅的结构型态。入内中心挑高楼板结构使人感受入室后空间放大的对比效果,搭配水平方向悠长延展的特殊漆痕,形成如海浪层层交掩、流畅又富含远近层次的流动感。
 
 
 
 
△入口展示区挑空设计|摄影
 
 
△入口展示区局部|摄影
 
 
△展示厅视线延伸|摄影
 
 
 
 
采取室内建筑的概念,多数梁柱干净收入造型墙体,统合延伸的曲度让进退面构筑层层廊道及隐藏在后的出入口,创造穿梭其间蜿蜒幽静的路径,搭配连贯的中性色介质,让情绪静止的内蕴力量缓缓而升。路径上布有此端彼端的窥望层次,沿着墙、循着光,在路的尽头找到令人向往的海与天,平凡的行走在此化为一趟又一趟漫游散策。
 
 
△视线内外贯穿的洽谈区|摄影
 
 
 
 
 
 
 
 
 
 
 
 
△弧型接待台局部|摄影
 
 
△弧型接待台细部|摄影
 
 
 
 
 
 
△营造狭窄穿行感的过道|摄影
 
 
△蜿蜒幽静的路径|摄影
 
 
 
 
 
 
 
 
 
 
 
 
 
 
△弧型天花艺术造型|摄影
 
 
 
 
 
 
延续室内建筑概念,设计师除了思考迎向海景的景观窗,也利用各墙体进退面、曲面斜度的衔接隙缝,创造宛如天然成形的室内开口,导引不同时间点的自然光入室、渗入空间深处。
 
 
△迎向海景的景观窗|摄影
 
 
△渗入空间深处的自然光|摄影
 
 
 
 
△链接室内外的灰空间|摄影
 
 
 
 
△蜿蜒曲折的通道将视线引向户外|摄影
一二楼主动线梯间是一段狭长甬道,设计师封闭两侧开口,以特殊漆、磨石子延展出光洁隧道,唯一自然光由头顶一方天井撒入,前后段以弧形天花板刻意挤压空间感,唯天井下绽开光亮的抒怀,放大此刻沐浴天光的恒久沉静。
 
 
 
 
△主动线梯间的狭长甬道|摄影
 
 
 
 
设计师也将室内照明藏得内敛,光线安静地川流于立面与楼板的罅隙,随量体转折渐强渐弱,让所有的庞然沉重转为轻盈飞舞,如窗外翻转的浪与波光粼粼。在自然光下纯净的立面,当暮色降临、灯光开启,藏得细致的光束转而赋予室内建筑一股前卫科技的神秘与俐落,两相对照各有情致。
 
 
 
 
 
 
 
 
 
 
 
 
利用材质本色与重新编排所呈现的肌理,我们希望青岛东西合并的城市过往,能以更抽象的语汇记叙在这座建筑轮廓里。例如带有现代欧风的水磨石、水平方向刷涂的手工漆、有机的流畅曲面,象征西方当代美学追求的纯粹力道;色泽偏红而沉稳的实木、从格栅演译出来的直纹铺排肌理,以及盈虚共存的留白意境,是演绎出中式美感的哲思渊源,透过材质和建筑量体汇整成和谐的场域氛围。
 
 
 
 
 
 
△精致石材与沉稳木材相融合|摄影
 
 
△精致的水磨石遇到光|摄影
 
 
 
 
 
 
 
 
 
 
两股不同脉络的审美背景,在建筑惯用的语汇中找到自在样貌,延续青岛滨海的城市风土,作为空间里信步体验的静谧涵养。
 
 
 
 
 
 
 
 
 
 
项目名称|青岛灵山湾悦府展示中心
空间设计|李智翔、葛祝纬、林其纬、陈宥儒、叶子葳/水相设计
室内负责|宋涛、张翔/ 华润置地
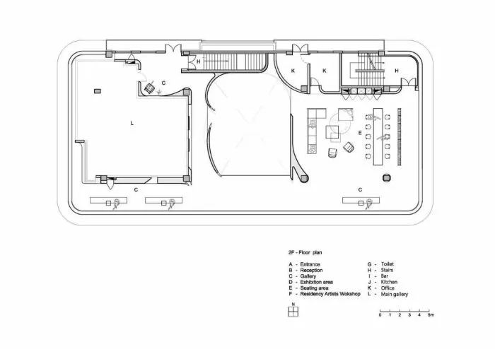
空间格局|接待区、洽谈区、品牌展示区、办公室、卫生区、功能区
设计时间|2020.07~2020.09
施工时间|2020.11~2021.02
主要材料|灰色手工漆、灰色水磨石、橡木实木、U型玻璃
 
 
Waterfrom Design
成立于2008年的水相设计跨足室内与建筑领域,秉持设计应如『水』的初衷,纯净、有机又多变,本质上保持其原有的简洁性,意念上展现无框架的可能性。致力关注于空间的故事脉络及时间光线,创造一个具有情感沉淀及讯息想象的空间。
 
 
从事设计迄今十余年,作品揉和极简与幽默,毕业自纽约普瑞特艺术学院室内设计硕士与丹麦哥本哈根大学建筑研究。带着艺术、人文、哲学的思考,李智翔的学习养成到执业,有着建筑设计般的理性思维,亦有艺术家的叛逆本质,他喜欢在规则的例外对既有秩序重新定义,在不可预知的不准确性下发现惊奇。


