Foster Partners
RCC 新总部办公大楼
作为全球领先的铜生产商之一,RCC(叶卡捷琳堡市俄罗斯铜业公司) 的新总部构想了新的蜂窝办公室,由知名建筑事务所 Foster Partners 设计,在质量、舒适性和灵活性方面树立了新的标准。
新总部位于俄罗斯的叶卡捷琳堡,这座 15 层的创新型模块化办公单元被一个节能外壳包裹着。
这些三角形的覆层灵感便是来源于铜的面心晶体立方结构。不锈钢覆层板则采用物理气相沉积(PVD)工艺进行着色,形成了精致且坚韧的外观。
整座大楼在金属与玻璃的层层堆叠下,充满了强烈的科技感。
为了应对叶卡捷琳堡不同季节之间的巨大温差(-30℃到30℃),将金属与玻璃结合起来,既可以接受冬季的阳光,又能减少夏季阳光的直射,完全符合BREEAM优秀可持续发展等级标准。
建筑物顶端加入了 RCC 的新徽标,以等边三角形为核心扩展出的万花筒形状象征着公司注重智能采矿,与整座建筑完美的融合在一起。
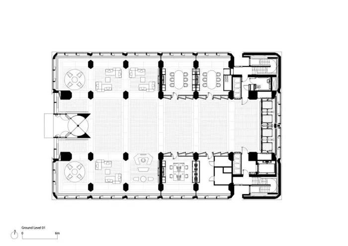
办公楼层的出发点是将总部塑造成为“员工之家”,而不是传统的大型公共工作空间,积木式的结构营造了亲密的办公环境。
设计团队分析了客户的运营情况,并为此设计了新的模块化办公系统。
在办公楼层,每两层形成一个完整的模块,办公室相互堆叠,通过双层壁板连接在一起。
这样的模块确保了理想的自然光照射,以及快递的施工与装配。
这些办公室模块都享有一个开放式的中央走廊区域,设有许多座位,可用作休息区,通过一旁的玻璃外立面还可以欣赏到城市风景。
办公空间主要分布于两侧,Y 型楼梯连接着模块内的两层空间,也可以通过电梯直接到达。
走廊旁还设有 20 多个多功能空间,在双层办公模块的每一侧各有五个,拥有多种用途。
建筑师还在建筑底部为员工创造出一片专属的花园,与蜂窝状的内部空间相呼应,为员工提供了休息或用餐的悠闲场所。
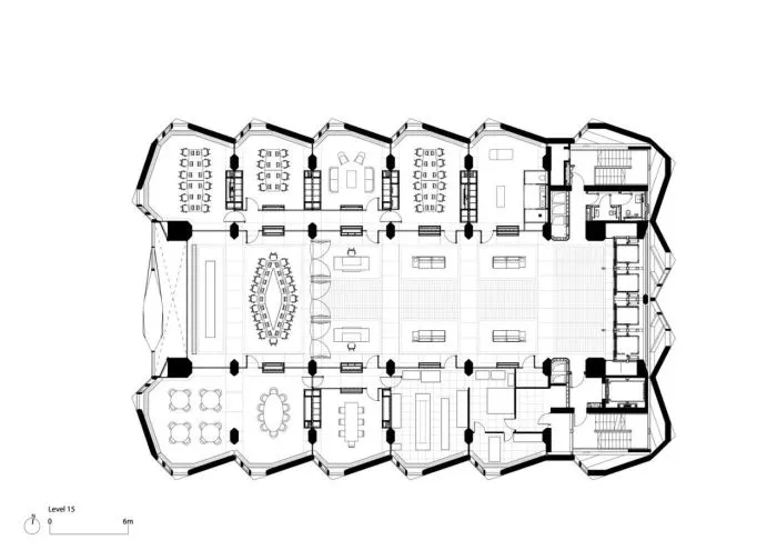
14 层是行政办公楼层,15 层是董事会会议室,简约的中性色调贯穿始终。
顶楼采用了顶灯照明,为公司举办聚会和活动创造了灵活的空间。
大楼内还包含许多其他设施,包括餐厅、健身房、桑拿浴室等等。

