这是由DaoHo Studio改造的一间住宅,位于越南河内市中心的位置,建筑高层的优越位置让屋主可以看到喧嚣吵闹的街道,也可以感受到家的宁静温馨,而屋主表示自己最需要的就是这之间的平衡,146平米的空间足以拥有惬意的生活姿态。
▲改造前的三间卧室紧密相连,不仅导致隐私变差,也遮挡住了家中的大部分采光,相比之下公共区域反倒显得空间狭小且不够明亮通透。
DaoHo Studio
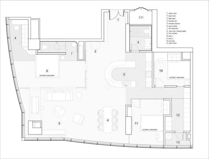
首先对功能区进行了调整,将其中的两间卧室”移“到了东侧的区域,保证与主卧之间有一定的距离,并扩大公共区域,将公私区域的比例调整为1:1,更加符合屋主的要求。
适当的遮挡,带来更强的探索欲
▲入户与功能区直接连接,可是设计师认为若是一眼望穿,那么对空间的探索欲也会减弱,所以当视线被厨房吧台遮挡,反倒更有好奇心。
▲厨房的设计非常独特,拉丝黄铜的中岛吧台不仅定制成U型,还“悬挂”于厨房的架高地台上,使其中的一半都成悬空状。
▲这扇门内还隐藏了一间客用洗手间。
▲灯光照射在温润的木料上,清爽且舒适,而照射在铜面吧台上,却有着金属独特的光泽感,整个光影层次更加丰富。
▲原先建筑的东侧为公共区域,如今为了保证卧室间的隐私,设计师将两间次卧全部移动到了东侧区域,并使用长虹玻璃保证透光不透视的效果。
▲如今餐厅被设计为最简单的黑与白配色,却因紧靠窗边,可以俯瞰城市的景色,而丝毫不显无趣。
▲原先公共区域有一半的采光都被遮挡,如今设计师将所有的窗户全部“释放”,整个L型的建筑外墙全部是落地窗,窗外的景色便是室内最好的点缀。
▲沙发后卫的主卧调整了开门的方式,利用玻璃门将来自卧室的光线与视野都可以穿透。
▲一张双人床摆放在空间的中央位置,灰色与白色调的搭配,显得宁静且惬意。
▲利用架高的水磨石台面划分出卧室内的不同功能区,白色的背景墙板在转角处做了一个壁龛,摆放屋主的睡前读物,不仅实用且非常有艺术感,而左后方则为主卧的衣帽间。
▲另一侧为主卧的洗浴室,设计师采用了干湿分离的方式,黄铜的洗漱池,是不是瞬间让人与厨房的吧台进行了呼应?
/DaoHo Studio
摄影/Alis Viet Nam

