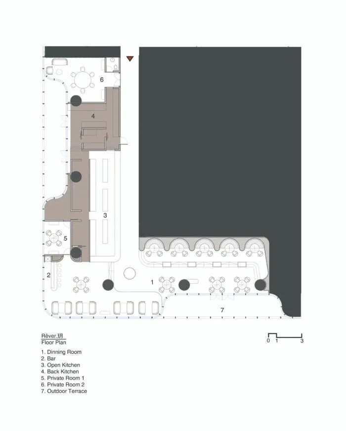
The layout and design of high class restaurant
Let people relax and release all the pssure
Enjoy high quality meal time
Cure you with smart stories in space
首家符合国际标准的高档现代法国餐厅,从法国烹饪传统演变而来,吸收来自世界各地创新技术和起源的烹饪技巧和食材,现代法国料理是一种全新的美食风格,由每位厨师自己的想象力诠释。餐厅以现代、时尚和简约的室内设计为特色,充满舒适的细节,与珠江的灵感相呼应。
The first high-end modern French restaurant in line with international standards has evolved from the tradition of French cuisine and absorbed the cooking skills and ingredients of innovative technologies and origins from all over the world. Modern French cuisine is a brand-new style of cuisine, interpted by each chefs own imagination. The restaurant features modern, fashionable and simple interior design, full of comfortable details, echoing the inspiration of Pearl River.
不同层次座位安排如沿江梯田,客人能欣赏到180度江景和真正充满活力的广州天际线。餐厅色调设计灵感源于河流在一天中不断变化的颜色深浅,营造出宁静舒缓氛围,白色大理石地板形成类似河水运动的自然图案。
天花板上倒影转化为一条与天空相连的河流,与窗外天河区形成有趣的回声。
Different levels of seating arrangements, such as terraces along the river, allow guests to enjoy the 180 degree river view and the truly vibrant Guangzhou skyline. The color design of the restaurant is inspired by the changing color depth of the river throughout the day, creating a quiet and soothing atmosphere. The white marble floor forms a natural pattern similar to the movement of the river. The reflection on the ceiling turns into a river connected with the sky, forming an interesting echo with the Tianhe area outside the window.
家具与空间搭配,采用弯曲山毛榉木简单框架,带有餐厅色彩暗示,与室内设计保持一致,最大限度提高空间和景观视觉体验。策划一次非凡用餐体验,设计深受各大博物馆和美术馆如此流行的导游启发,期望用“艺术作品”与客人互动和交流,让他们看到菜肴之外的东西,创造一种真正难忘的体验。
Furniture and space collocation, using curved beech simple frame, with Restaurant color hint, consistent with interior design, maximize the visual experience of space and landscape. Planning an extraordinary dining experience, the design is deeply inspired by the popular tour guides in major museums and art galleries. It is expected to use works of art to interact and communicate with guests, so that they can see things beyond the dishes and create a truly unforgettable experience.
Opasly Tom餐厅位于波兰首都华沙市的市中心,是一个超过260平方米错层式空间,拥有着不同规模和风格的用餐空间,为人们提供现代波兰美食。餐厅内设有带阅览室酒吧、酒窖和精致的半开放式厨房式餐厅空间。
Opasly Tom restaurant is located in the center of Warsaw, the capital of Poland. It is a split floor space of more than 260 square meters, with dining spaces of different sizes and styles, providing people with modern Polish cuisine. The restaurant has a bar with reading room, wine cellar and exquisite, semi open kitchen style dining room space.
设计中面临最大的挑战是如何处理一系列规模尺寸和高度都各不相同的非标准型空间,尤其是当功能空间位于错层空间中,更是难上加难。建筑师在室内色调的选择上使用一系列来自于大自然颜色,如珊瑚色、鼠尾草般绿色、蜂蜜般黄色和蟹青色等,这些丰富的色彩被运用在各个用餐空间之中。
The biggest challenge in the design is how to deal with a series of non-standard spaces with different sizes and heights, especially when the functional space is still in the staggered floor space. Architects use a series of natural colors in the choice of interior colors, such as coral, sage green, honey yellow and crab blue. These rich colors are used in various dining spaces.
这种现代而简约的设计手法在视觉上产生一种连续性,同时也创造出一种强大的美学效果。它为整个餐厅提供出色的音响效果,并作为一个引人注目的背景,衬托出餐厅内定制家具和精致的白杨木、颇具几何感的水磨石、橡木和粗糙且未经抛光的大理石等打造而成的各种装饰和室内饰面。
This kind of modern and simple design technique produces a kind of continuity in vision, and also creates a strong aesthetic effect. It provides excellent sound effect for the whole restaurant, and serves as a striking background to set off various decorations and interior finishes made of customized furniture, exquisite poplar, geometric terrazzo, oak and rough and unpolished marble.
餐厅的上层用餐大厅,内墙上覆有天鹅绒软垫波纹钢饰面,采用颇具几何感的水磨石地面。上层空间设有宽敞的大厅,可通过门厅进入,同时某些位置上放置高镜子,这些镜子能够将华沙市如画的古老房屋反射出来,使顾客们能够更好地欣赏美景。
The dining hall on the upper floor of the dining hall is covered with velvet cushioned corrugated steel facing and terrazzo floor with geometric sense. There is a spacious hall in the upper space, which can be accessed through the foyer. At the same time, high mirrors are placed in some places. These mirrors can reflect the picturesque old houses in Warsaw, so that customers can enjoy the beautiful scenery better.
门厅通向酒吧和阅览室,在这里,顾客们可以尽情地享用开胃酒或是鸡尾酒。这里还有名为“绿洲(oasis)”的秘密房间,它是一个特殊的私人用餐空间,仅设有一张桌子,装饰艺术风格的室内设计采用白杨木饰面和带有花朵图案的原始织物。
The lobby leads to the bar and reading room, where customers can enjoy appetizers or cocktails. There is also a secret room called oasis, which is a special private dining space with only one table. The decorative art style interior design adopts poplar veneer and original fabric with flower pattern.

