 
 
任凭光影在空间肆意挥洒
把所有的焦躁不安化作轻松随意
空间的灵动性,会让生活变得更加简单且有趣。
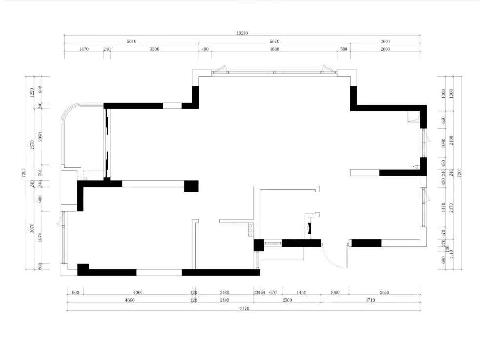
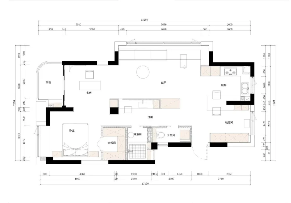
回字形的生活动线扩大了空间层次感,创意的采光设计与冷暖色调结合使空间之间和谐立体、自然灵动。
生活之所以有趣,是因为我们听随内心的声音,过自己想要的生活。
 
 
 
 
 
 
 
 
在开放式空间设计中,厨房、餐厅既保持互通相连,又体现出每个空间的独立性。
东出的自然光刚好照进室内,给予空间温暖的触感,秩序谨然又不失温度。
 
 
 
 
 
 
第一眼的惊艳于客厅,它是设计师深思熟虑之后,将至繁归于至简的表达。
没有电视的客厅,多了几分安静的氛围,将生活的琐碎统统收纳于没有痕迹的柜阁中。
透过玻璃窗的光线与空间融合,保持着一种感官上的平衡,空间尺度也更具趣味性。你仿佛可在那一束阳光下,看见生活的影子与吐息。
 
 
 
 
 
 
大面积的玻璃窗让人的视觉维度无线延伸。
傍晚时刻,室内与窗外形成鲜明的对比,定格的晚霞给人无限的遐想。
 
 
 
 
转角处的弧形金属体块,不仅赋予空间艺术感、柔和了整体的硬朗,还兼具藏窗帘的功能,将空间中时尚感与层次感发挥的淋漓尽致!
 
 
 
 
光悄悄遛进室内,在墙面留下足迹,温柔了内敛沉静的空间。
绵密柔软的床品和淡雅温润的披毯,在不打破现代感的基础上和谐镶嵌在简约之中,为空间的现代感赋予柔和静谧的色彩。
 
 
 
 
 
 
几何形状与材质肌理的碰撞,让理性的空间变得立刻引人入胜,绽放出灵动的魅力。
在干区置入的金属体块,其实是拔高了的“金属材质挡水条”,采用平面构成的方式将无边框圆镜与之形成前后、高低对比的层次感。
 
 
 
 
 
 
 
 
每个人的人生都是一部电影
以光投影,每个人都是主角。
 
 
 
 
 
 
 
 
▲图片均为设计师所抓拍
 
 
 
 
设计时间:2019年1月


