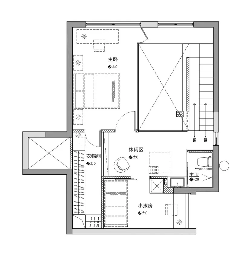
本案作为一个4.7m层高的loft,是一家三口未来幸福的港湾。男主人注重空间感,不想和普通loft一样压抑,女主人想要拥有独立的衣帽间和梳妆台,孩子希望有一个滑滑梯,设计师重新梳理空间,取舍之中实现阔尺舒居享受。
玄关
入户门厅处挑高处理,竖向拉伸了门厅与客厅之间空间关系。在4.67米的层高中塑造出loft形态,让空间之间自由的呼吸
客厅
简单、纯粹、利落的隐喻了人与生活的情感关系,在空间中反映一种仪式、对话。电视墙延伸至2F,呈现轻盈、通透的体验感。书架律动的竖向分割,为空间增添活跃表情。以功能为出发点延伸处立构形态,适当“留白”。
餐厅
开放式厨房与客厅相串联,让女屋主在煮饭时可照看到小朋友。
滑梯
1F与2F以楼梯&滑梯双重动线转载出空间中的动与静。
卫生间
卫生间干湿分离,洁净清爽。
走廊
2F规划出儿童阅读区,同时做卧室之间的过渡区。
卧室
主卧与挑高区以玻璃为隔墙,延伸出空间通透的视觉感。灰与白营造出静谧的睡眠氛围.
儿童房
清新感十足的儿童房。
我们关注人与人,与生活,与空间的关系,居住的空间除了满足人的生活功能和外在的美学呈现外,更需要发展出内在的生活精神,让人与空间可以相互滋养,让空间的感染力能够把我们带回更内在的感知。
项目名称:乐谷风
空间设计:李瀛/璞珥空间设计
坐落位置:成都
室内面积:74㎡
拒绝既有的流行语言或潮流风格,设计之后所展示的是居者自身气质&生活情感作用后的结果。

