本案居住者是美学造诣颇深的中国美院雕塑系教授;希望家呈现的是古朴调性的诧寂风,事物与时间的关系在这个空间里与居住者对话;
灵魂自由,不受拘束,打造一个更趋于民宿式的美学空间。


家对于本案居住者来说,非单薄的百十来方的居所而已,它是有灵魂的,不是片面为舒适、为美学,更偏向于一个灵魂辩证的表达,不受限,是包容的,开放的,又是极其自我的,带有极强的居住者属性。



在房顶做梁,楼梯做柱,建筑艺术穿插结构的形式将老木头放置其间,满足居住者家居空间里要有老木头运用的要求。



因为是雕塑系老师,做手工是常态且会在家办公,在空间富足的客厅放置超长手工桌,身后做墙体为置物架作为展览区。





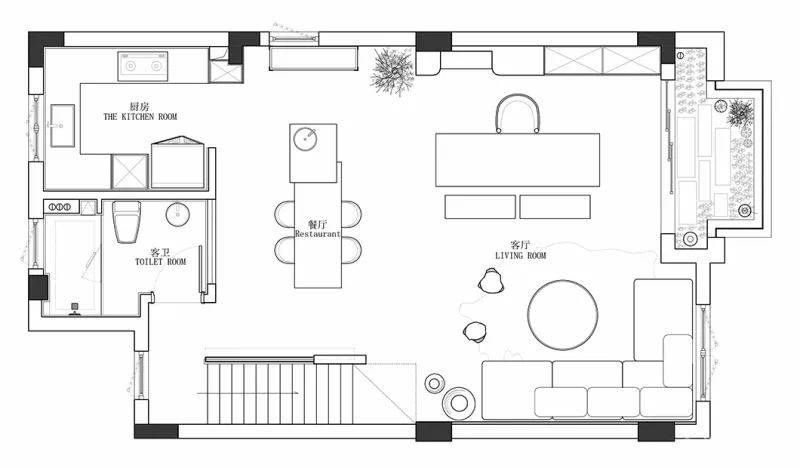
居住者希望公共空间在格局上尽量开阔,多一些空间之间的连动性,所以在一楼的客餐厅并未明确设限区域,而是以体块的形式在各个区域呈现相对独立的中心,厨房自然也是呈开放式。



由线呈面,结构交错优化空间层次。


木质的天然质感,本身便带有人文属性。呈现的家居氛围——安静、古朴。


楼梯是贯穿整个居室、层间的必然要素,破仅仅是垂直交通构件的传统印象,不拘泥于楼梯本身的通道价值,或者可以说是一个艺术走廊的概念形式,我们希望漫步者不是匆匆往返,而是在家的每一处都可以是停下、静默欣赏的地方。


楼梯扶手选用通透的玻璃材质,一楼结合老木头的元素与造型相互穿插,二楼以两种材质结合来呈现,免除碍于楼梯狭小、格局呆板的问题。


居住者要求家里动静区域明确,动区规划在一楼,二楼是睡眠区。



重组空间结构,柜体推入墙体,墙面延伸曲面连至衣柜,空间衔接顺畅干净。



卧室主打暖色调,选用偏黄色艺术漆营造老房子土墙效果,没有冗赘的装饰,归还纯粹的睡眠空间。










项目地址:九龙仓雍景山
项目类型:硬装设计,软装宅配
项目户型:三室两厅两卫
空间摄影:瀚默视觉-张家宁

菲拉设计是一家设计、施工、软装配饰一体化的家居全产业链发展模式企业。以设计为核心竞争力,服务品质为企业承重墙。公司服务定位于社会财智精英人士和高端客户,为业主提供最专业、省心的高品质定制服务。

