本案是一对年轻夫妇的公寓,设计师采用了大量的天然材料。裸露的混泥土天花板、天然的木质和色彩搭配相得益彰,让整间公寓温馨舒适。
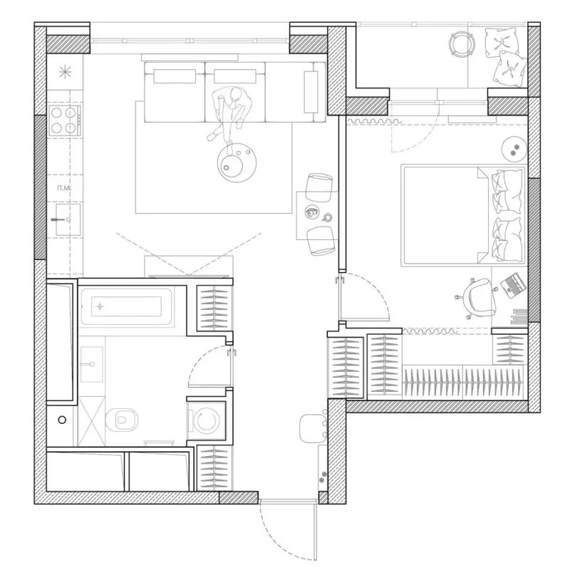
HALLWAY(过道)
玄关颜色很单一,布局也很简单,进入公寓就一个悬空的台面可以放置一些零碎的东西、一个衣架、一个镜子和一个衣橱。
LIVING ROOM(客厅)
客厅窗户边放置了一个土红色的长沙发,电视背景墙的外凸设计显得简单而又有层次。
DINNING(餐厅)
餐厅布局简单,抛弃了冗杂的摆件,仅保留了一张两人的小餐桌、一盏黑色吊灯,简约而温馨。
KITCHEN(厨房)
橱柜的颜色与公寓整体色系相吻合,原木色全包,整个空间色调统一,看起来整洁大气。
BEDROOM(卧室)
床靠背有一个小立方体,端面上有插座和开关,摆放着两幅抽象画,床的一边还有一个工作台,是一个安逸舒适的空间。
LIVING BALCONY(休闲阳台)
卧室外面有这一个休闲阳台,面积不大,但足以给主人提供了放松的角落。
BATHROOM(卫生间)
卫生间的墙面采用了特殊的防水材料质,在实用的前提下,空间整体美观而又大气。搭配飘逸的透明白帘,朦胧感顿生。

