NO.18 BREW PUB
WuHan, HuBei
“你们若恰好路经查令十字街 84 号,
代我献上一吻,我亏欠它良多……”。
——《84, Charing Cross Road》
在繁华的汉口 K11 商业后街,营造同《查令十字街 84 号》那样的温情空间,
我们将这里称为 Charing Cross Station查令十字街站台,回应
故事的结尾,期待所设计的空间将故事连载。
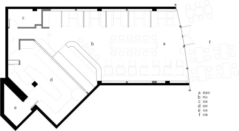
既有场地一体化的空间通过中岛吧台的置入,把空间具体分割,
耐心择取空间中的角落,就像挑选一本书那样,空间同样可以被阅读。注重空间自身意图的诉说,而不仅仅是功能诉求。
阳光斜射进沿街的窗栏,唤醒对抽象时间的遐想,在光阴中与真诚的自己对话。
手工擦摩出的斑驳墙体,保留了旧时光在空间中的刻痕。大理石和石材作为自然中纯净的形式,将空间以静态的方式围拥成自在的小世界。材质的质感、肌理、或是细微到可触摸的感受,都平静的重塑时光的温度,彼此成全。
三角梁顶的构筑,在纵横中激活空间关系,构成酒馆趋于永恒的氛围。
在英国,老酒吧被称为“Pub”( public house ),他们和教堂一样,其功能是社会性的,往往是一个社区的中心。我们希望在城市建立起的这座精神高地,传达18号酒馆精酿情怀与品牌内核之余,满足人们的精神需求。
小说中书信成为日子里无时不在的旁白。而当你走进这间站台,无论启程或是停留,它可以作为生活里一份温暖的回响。
设计方:12SQUARE
设计团队:胡丰 胡瑶 周琳
摄影:ZDstudio

