 
 
Moderate cultural guidance
 
 
结合当地建筑元素,将空间载体,转为历史文化的源,
解构、重组,以现代的方式呈现出来。
 
 
 
 
展现一种新时代的韵律感,传达轻松,畅达的生活概念。
Integration of art and technology
物情所逗,目寄心期,似意在笔先。
 
 
艺术创作都有一个先立意的过程,设计亦是。通过无限循环的空间,以抽象元素给人以最优的空间感受。
 
 
 
 
圆形元素在二次元的平面上,按照美的视觉效果、力学的原理,进行编排和组合。
Element symbiosis
 
 
生命中的互动作用如同水的涟漪扩散,所有人都不是孤立割裂的,万物都息息相关。它们在流动中变化,互相影响,激发了我们对于人与人,人与环境之间联系的思考。
 
 
 
 
它是以理性和逻辑推理来创造形象、研究形象与形象之间的排列的方法,是理性与感性相结合的产物。
 
 
 
 
 
 
匠造风雅,悦然再续,用一种五感交融的空间美学,诠释 「 生活的作品」。人文艺境造就自然空间,在我们眼中,一个空间的灵魂,与物质无关,与精神有关。
 
 
 
 
 
 
以云为裳,串联建筑、景观和室内的观感体验,为观者带来一系列连续的沉浸式感受。
 
 
Flowing like a dream
 
 
无处不在的线条的运动美学,律动和美学内涵,综合到极致之处,就达到一种融合一种突破线条运动的极致,乃是一波才动万波随,生机浩沛的生命活体。
 
 
Effect chart
 
 
 
 
 
 
 
 
 
 
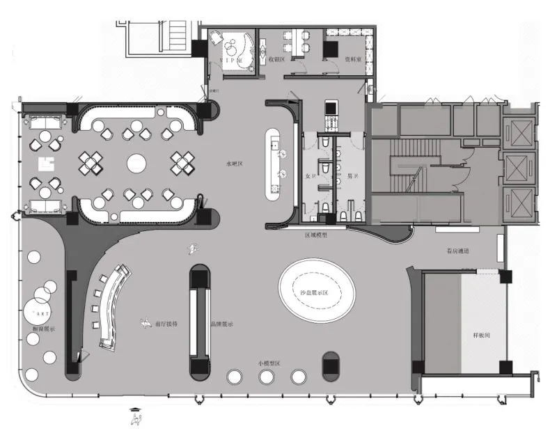
Layout plan
 
 
绿都地产郑州云立方展示中心
郑州绿都地产集团股份有限公司
陈猛、宋洋、吴飞、李甜、房子杰
机电团队 | 韦蓉蓉、崔润
上海筑光照明设计有限公司
彦铭视觉艺术(深圳)工作室
艺术涂料、烤漆玻璃、古铜拉丝不锈钢等
 
 
 
 
Add:上海市徐汇区肇嘉浜路736号龙头大厦5-7楼
Tel:021-54657752
Mob:18930913720
Web:www.facedesign.cn
E-mail:face_design@126.com
 
 


