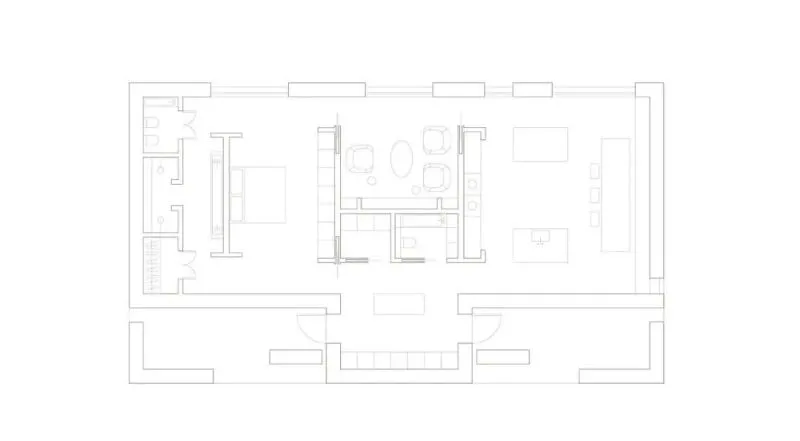
Kanstantsin Remez新作,面积90㎡,给人温暖而舒适的感觉。该公寓分为以下功能区域:带步入式衣帽间的大厅,客用浴室,带客厅的厨房,带小用餐区的阳台和带套间的主卧室。
大型檐口强调了高天花板,而檐口则具有与内部其余部分相对应的简单几何图案。
隐藏门窗门,将开口变成入口。
最好的例子是通往封闭阳台的门口。
由于有檐口,阳台感觉就像是统一空间的一部分,而不是一个单独的区域。
客厅里有几把扶手椅、几把椅子和一条长凳。这里没有电视机,取而代之的是两墙板。该空间似乎更适合阅读和桌上游戏。家具在新旧之间形成了额外的对比。
厨房包括一个厨房岛,一个带大水槽的烹饪区,以及可以隐藏橱柜和所有厨房用具的木质嵌板。
卧室是一个开放式空间,
盥洗台和淋浴间没有隔墙: 通过衣柜在视觉上将它们与卧室隔开,
卧室里有一个阅读角落,里面有一把舒适的大扶手椅,
整个空间都是木头做的,温暖舒适。
Kanstantsin Remez
Kanstantsin Remez是一名白俄罗斯的室内设计师,喜欢极简主义,致力于研究将侘寂美学与东方禅意相结合的空间哲学,坚持以极简的设计手法和原始自然的材料,营造浪漫诗意的当代人居空间。
Introvert Residence
Kanstantsin Remez老家的房子,
,老房子已经过时了,原先设计师不重建现有的结构,而是重新开始。但在寻找概念时,还是决定使用现有房屋的轮廓。为了进入起居区,人们需要用绿色植物代替房间布置原有的房屋轮廓。
主要起居区有两个对称的入口,以便进入住宅,无论是乘车到达还是步行回来,
墙壁和树木后面隐藏着一个停车位。
生活区有传统的v形屋顶,白俄罗斯典型的房子。
房子包括以下区域: 休息室,客房浴室,技术室,带饭厅的厨房,带书房的起居室,带套间和步入式衣帽间的主卧室。
除了主要的起居室外,还有一个带两间客卧室
,带有独立的浴室和小厨房。
居住区后面就是游泳池,
可以从卧室通过全景窗口到那里。
绿树和客人卧室使游泳池从邻居的眼中隐藏起来,
游泳池后面隐藏着一个小型休息区,
它被绿色的植物所环绕,从游泳池或客人卧室看不到。
主要材料是天然石材和木材,包括Douglas Fir镶木地板和墙壁上的橡木贴面。
石材营造出一种宁静,动感的乡村房屋氛围。
厨房/餐厅的面积包括两个用石材做饭的岛台和一个橡木桌。
客厅是一个单独的房间,
它还可以作为一个读书区,让人集中精力阅读。
卧室设有一个睡眠区和双人淋浴区的套间,
淋浴间的天花板有一个天窗,大量的自然光进入室内。

