在俄苏学者洛特曼的理解中,“文学作品的艺术空间是一个连续统一体,人物分布其间,情节也发生其间。” 艺术是至今为止世人所知道的最强烈的个人主义的形式,当穿梭于空间之中,新的生活定义被重新赋予。
人们的生活本质是相同的,可在那一物一件中却又千万差别。每一件物件都有自己的意义,踏过时间的河流,在造物者的空间里寻找自己的归身之处。
岁月鎏金,艺术在这里悄然发生
家的魅力来自于承载岁月的洗礼。解构主义的重新表述,大理石、棉麻、皮革面料沙发及金属压边,不同材质的叠搭,每一次的碰撞与融合都是新的革命,让空间顿生别样律动之美。
会客厅的小羊雕塑戴着墨镜,严肃而俏皮的样子一定会给居住者带来好的心情,为空间赋予新的表情。
留声机扩香器调动感官加强各区域的互动与联系,整体空间感受与氛围达到形意合一。
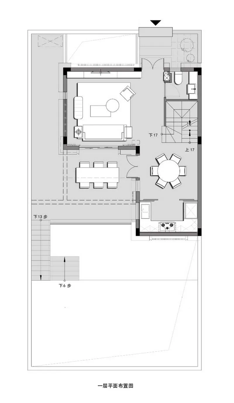
开放式空间,餐桌和厨房形成洄游动线,目光所及之处皆能与自然静候对望、与艺术呼应对话,这里是游刃有余度过三餐四季的港湾,亦是奔赴山川大海囿于厨房与爱的居所。
理想人居,乌托邦休憩之所
主卧私密空间,简约的设计消弭了城市的聒噪,设计师希冀运用一种日常的设计语言强调内部亲和且紧密联系的情感。
皮革与金属的混搭,让边界轮廓更加明晰,家的细节让空间变得愈发迷人。
次卧色彩点缀与尺度把握注入新的活力,通过规划多元生活与人居体验,于不同维度思考、自述、记录帧帧场景,在这里为情感交流提供充沛动力。
艺术是美的内核,亦是空间浓缩的本质。
儿童房的意义除去居住功能,更多的是让这里成为孩子的游乐园。
以粉色系陈软贯穿起轻松童趣的主题,释放出一方儿童的徜徉天地。
这一隅天地中亦藏匿着许多的小秘密,有着与达芬奇一起学着画鸡蛋,与弗瑞达一起画自画像,还有那纪念碑中的艾达公主,使空间中的故事情节都补充了生动的角色。
自然的光影,照射在画面上,每一刻都有着属于自己独特的魅力,在明暗之间,色彩的厚度也赋予着时空不同的奥义。
在《纪念碑谷》游戏中,旋转式的古堡、塞万提斯笔下的风车、古巴比伦式的空中花园,艾达游走于网格状的关卡仙境中。
每个建筑都充斥着各种机关,有些地方看似已经没有了前进的方向,但正如主设计师所说:说不定你换个角度就会发现,原来路就在自己的面前。现实空间里亦是如此,生活中的趣味之美往往就发生在身边。
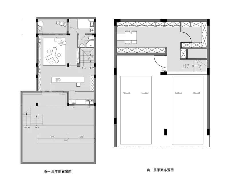
童话的梦幻之境在地下一楼的儿童活动区得以延续。高于低的落差,架起了空间的“起、承、转、合”,在跌宕错落中,承载着儿童的梦与想,和纪念碑中的艾达公主一起度过那奇幻而冒险的梦境,动态与静态的场景交错其中,让空间的意趣妙不可言。
多维空间,重构诗意生活美学
地下一楼的书房过道与整体空间色调相连接,素雅肌理的墙面延伸开来营造寂静的场域氛围。
安坐室内一角,掩映于光隙之间,藉由着书本带来精神的富足,浸润着灵魂。当空间构建在私密与开放的相对关系,情感与人文精神的对应成为空间的主线,令生活邂逅艺术并将融于生活。
时光是魔法,美酒是这里的主角。大理石的肌理使空间更加的豁达与透亮,光线赋予了新的奥义,在稍纵即逝之间,忽暗忽明,而这些不确定的瞬间,增加了一种生活情感的维度,感受着艺术之美,感悟着生活之味。
项目名称:广州新力海石洲悦样板房 项目业主:新力地产 项目地址:中国·广州 项目面积:254㎡ 完成时间:2021年1月 甲方团队:刘科 薛罡 许楠 杨纪晓 室内设计:上海乐尚设计 设计总监:周平 软装团队:LILY 欧阳一凤 骆俊梅 硬装团队:乔亦乔 石亚军 郑以梅 空间摄影:翱翔
上海乐尚设计成立于2004年,是集室内设计和软装设计于一体的全案室内设计机构,为全球高端地产和商业公司提供针对酒店、会所、办公商业、销售中心、样板房及精装住宅的专业设计服务。
16年的发展,公司现有130多人的专业设计团队,秉承“创意自由、规划严谨”的理念,在卓越的设计管理前提下,关注客户需求,实现优雅、简约、不拘一格的创意设计,提供超越客户期望的专业服务。公司先后与万科地产、保利地产、旭辉地产、融创中国、融信地产等建立了战略合作伙伴关系,并得到客户的高度认可。

