项目名称:SHISUO 生活方式概念店
项目业主:深圳时索服饰文化创意有限公司
室内设计:杭州观堂室内设计有限公司
项目地址:深圳科兴科学园
竣工日期:2021年01月
道具制作:杭州久维装饰工程有限公司
施工团队:广州恒达工程有限公司
中古家具:Hylla Collection
主要材料:水磨石/肌理漆/柚木/黄铜/天然石材
空间摄影:Wen Studio/汤汤
SHISUO/时索服装品牌,以丝、麻、毛天然面料为主,
强调裁剪赋予的自由,尊重面料的独特个性,在方寸纹理中抚触温度,在时间节奏中探索自然之美。她是东方的、质朴的、内敛的,同时也是精致而有温度的。
从2020年3月31日项目启动至2021年3月16日现场拍摄完成并正式出片,
350天,几乎是整整一年。对于服装商业空间来说,这是一个很慢的周期。
复推敲的尝试,有令人抓狂的纠结,有接近奔溃的迷茫,还有
而当最终,空间的调性、氛围、材质、陈列逐步调整到位,一点点呈现出最初向往的愿景时,那些悬挂于内心的焦虑慢慢释然。
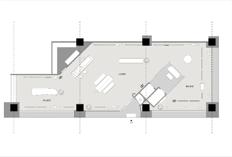
▼ SHISUO 科兴科学园店平面布局
科兴科学园店铺呈横向扁长型,层高3.5米,开间26米,三面落地玻璃,非常通透。设计从场地的自然格局出发,运用建筑手法,在店铺内斜向穿插一个方形盒子,用以打破狭长空间的呆板感,同时将店铺悄然分割成SHISUO品牌下人文、复古与都会三个系列的独立展示区。
方盒子以木构框架为基础,选用日本梭织面料进行表层绷面。奶白色面料由精梳棉和麻混纺后处理而成,平纹肌理,干爽且具有适度的垂坠质感,绷在木框表面,形成屏风效果。柔和的面料与木质纹理相映衬,蕴含东方的内敛与质朴。
▲ 中古沙发 — Rock 2-Seater Sofa,由Montis创始人Gerard van den Berg于1970年设计,选用优质干邑白兰地色皮革,全手工制作 — from Hylla Collection.
城市的快节奏推着人每天麻木前进,满眼都是高楼大厦铜墙铁壁,街上是密密麻麻穿梭的人群车流,没有空暇停下来思考。现实中,我们无法改变这座城市,但可以把对美好的向往在自己的方寸天地中表达,并由内而外的分享给拥有同样理想和情怀的人们。
SHISUO的休闲系列贴近生活,放松而浪漫,天然的服饰面料,搭配白色纱帘、草帽、软靠和抱枕,窗外绿植掩映,柔和的色彩和自然材质,在松弛的空间尺度里自由呼吸。
在这里选用了很多中古家具,1860年的Rocking Chair、非洲的WE部落椅子与Luba Hemba风格女像柱、丹麦设计师Pelikan Design于1997年设计的山毛榉屏风、来自法国的进口橡木面板,让这里更是一种生活方式的呈现。
SHISUO希望打造一个适合独处的时间与空间,安静地聆听内心,安慰而诚实。在漫长的项目执行过程中,四处寻觅各类天然原石,开凿的肌理,斑驳的裂纹,在岁月的流淌中保留自然的痕迹与美妙,用作吧台、展桌、底座、模特支撑,自然而然的融合。
SHISUO追求东西方文化的融合,
每一季的面料都经过细心挑选,有来自日本的混纺梭织、意大利的混纺毛以及中国优质的丝、麻,通过设计的手法将品味与舒适感完美结合,通过独特的视觉语言来表达当代东方美的新面貌。橱窗展示中,别出心裁的将各类面料以最本质的方式平铺垂直悬挂,展示出纹理、结构与质感的力量与美好。产品陈列的挂杆选用黄铜制作,随着时间的推移,黄铜会自然氧化,这是岁月带来的别样馈赠。
初一看,没有人会发现店铺门楣的特殊性。事实上,黑色“热铁”屋檐以10°角微微倾斜外挑,既源自于东方建筑坡屋顶的灵感,也象征着东方人的内敛与含蓄。在岁月的使用中,热铁也会慢慢氧化,呈现出不一样的魅力。
邮箱 / Guantangdesign@hotmail.com
网站 / www.guantangdesign.com
地址 / 杭州滨盛路之江花园之祥径16号


现在这个浮躁的世界,能细心整理一些东西发上来的越来越少了。要么就是敷衍的图片,要么就是枯燥的文字。之后就是AI生成的预制菜类的打包便捷快餐了。感谢楼主的分享,让我能在大智能无人化来临之前,看到同类发出的项目。有幸与您互动,缘分。