设计师:李瀛/璞珥空间设计
施工团队:璞珥-呈憬装饰施工
我希望我的“自我”永远“滋滋”地响,
翻腾不休,就像火炭上的一滴糖。
对本案的业主来说,家是相对自我的空间。夫妻二人希望在繁忙的工作结束后,可以获得长效舒适的居家体验,能够真正放逐自我:设计师摒弃了传统的布置方式,在当代的极简造型中,融入些许侘寂元素,构建出一个内敛沉静的居室。
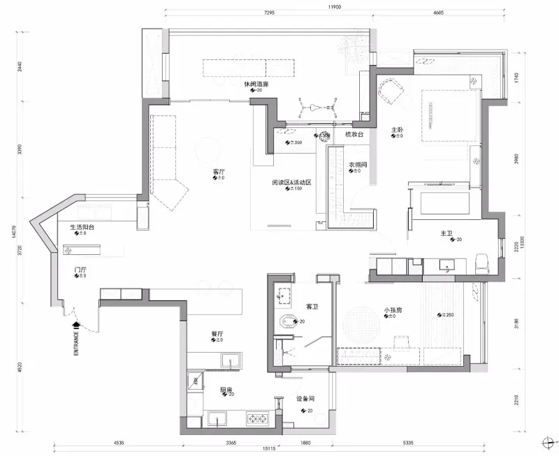
从玄关到客厅延伸出秩序,推敲结构、功能、流线、色彩,以简约的手法摒弃琐碎的定式,界而未界,带来空间多维度的层次感。
-入户一面悬墙,奠定有序、沉稳的生活基调,在玄关形成回环的姿态,分开进门搁置收纳与前往客厅的两条动线。
-客厅功能重组,以升降投影设备释放更开阔的灵动空间,沙发、吧台、休闲区共同围合出一个开放的生活场域。将地面抬高,划分空间,配合体块立构和格栅,似隔非隔,在参差错落中梳理空间的层次感和节奏感。
着力于塑造空间的尺度与包容感,从轮廓到细节,构建人与空间的羁绊,给予人向上的生命力。
-公区大量留白、少量陈设,不被过度的外物捆绑,让生活回归原始的简单。无论是入户阶梯条凳,还是休闲区台几,皆选用老木材质,粗糙的凹凸肌理催发出一种不疾不徐的情绪,随着时间推移,色泽沉淀,散发出新的韵味。
-八分藏两分露,木饰面柜体包容各分区的收纳空间,细腻的纹路中和了灰调空间的硬朗,与盆栽、摆件构成一个个禅意小景,意蕴绵长,让空间与人同生共长。
通过空间设计的美学语言,营造静谧安定的空间氛围,让居家生活更加随性自由,放逐业主的自我思考和生活热爱。
-焦糖色的空间,以灰度营造高级感,幽暗的中性调,收敛外界的浮躁和烦乱的思绪,放大自我的存在,不张扬不做作,给予业主包裹感和安定的情绪,让人的精神得以沉浸,获得长效的居家体验。
-各种点光源重点照明局部,透过格栅带来光影变化,在空间形成明暗对比,营造出柔和温暖的氛围感和仪式感,橘色沙发、烛光、音乐、美酒,尽情释放对生活的热爱。
结语:空间没有定式,生活也没有。以可开可合的场域,让生活拥有更多可能,在家的基底下,自我得以拥有更广阔的体验感;赋予空间可持续的生命力,人与空间得以互相滋养成长。
PUER SPACE DESIGN
璞珥空间设计由李瀛女士于2016年成立于成都,为追求品质生活的小众群体提供完善的居住空间解决方案。璞珥秉持追求空间本质的设计理念,不过度追求形式,善用天然材质及比例韵律表现空间层次及张力,注入美学以取得平衡,从而创造居住空间的生命力。
李瀛设计师多年来致力于简约风格原创设计,擅长化繁去简,其设计除了满足居住空间的生活功能和外在的美学呈现外,更乐于拓展内在的生活精神,让人与空间可以相互滋养。

