这个项目可以说是一次实践,它探索弱化建筑与周边环境之间边界的方法,像是使用了某种骗术,让人们察觉不到这片土地上还存在着一栋建筑。考虑到这个“天赋之地”不仅坐落在美丽的维斯岛上,实际上它也位处于地中海,我们希望这栋房子能像苏格拉底正厅(第一座被动式房屋)那样,将古老的传统石墙重新诠释,并且创造出一种新的人为的田园地形。
这个项目是在一处没有任何基础设施的土地上为一家人设计一座临时度假屋,同时,还要完全满足用户的需求。在基础设施完全缺乏并且难以再从外界获取的场地上,自我可持续性系统是完成项目的唯一解决方法。而且,这种系统对这个项目来说,从很多方面来看都是合理的,可行的,比如它花销较少,可以满足所有使用者的需求,不影响地方政府的政策和城市规划,还可以完成建筑手法的表达。这座房子使用了自然散热和通风系统,雨水采集利用系统,太阳能电池板以及其他精心设计的自然资源利用系统,使得这里的设施能满足生活需求。
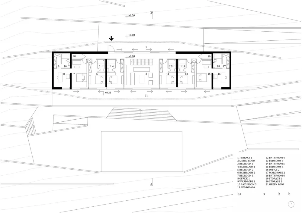
设计师设想这座住宅是一个在地下开凿出来的体量,一个从大地上掀起的口袋,一座人造石窟,一处唤起人们对原始住处记忆的空间。这座建筑一共有两层,一层布置着休息区,楼下则是布置在屋檐下的开放式餐厅,厨房,休闲区,以及露天的露台和泳池。建筑的所有轴承元件均由钢筋混凝土制成。场地上原来的石头被用来装饰立面。新旧石地被处理得很微妙,相互融合。虽然这里有一座人造的建筑,但从外观看来,它似乎与环境融为了一体,当然,这种效果是设计师所希望的,也成为了他选择建筑材料的准则。
建筑师 PROARH
地址 克罗地亚
类别 独立住宅
主创建筑师 Davor Matekovic
设计团队 Vedrana Jancic, Bojana Benic
建筑面积 420.0 m2
项目年份 2016
摄影师 Damir Fabijanić, Miljenko Bernfest

