追求极致的平静与永恒的优雅
The pursuit of ultimate peace and eternal grace
本案业主是我们老客户的一位好朋友,在拿房之前,通过老客户推荐来京点咨询了设计,对比良久后,最终还是选择了我们,被欣赏并被选择,总是让人感到欣喜。
对于家,业主有着自己独特的想法与要求,当然,对设计的接受度也很高,与设计师的沟通中,全程高契合度;
施工过程中也相当配合,为了追求效果,家具、灯具、摆件都选择了设计师推荐的款式,遇到一个懂你的设计师,或遇到一个懂你的业主,都是一件让人十分兴奋的事;
完成一套好的设计,单方面的热情是不够的,一拍即合才是最令人开心的事。
餐厅 / Dining Room
本案设计中,设计师专注设计的尺寸感、高级感以及舒适度,把控整体装修的效果以及控制装修预算,除了少许软装的调改,硬装完全还原效果图,最大程度让家更符合业主的期望。
客厅 / Living Room
主卧地面铺的是水磨石,也是业主喜欢的元素,为了解决洗手盆水路问题,卫生间墙体做了90公分高度砖墙,上面用玻璃砖做隔断,既解决了实墙的无趣生硬,又解决了业主担忧的隐私性问题。
主卧 / Master Beedroom
南次卧 / Bedroom
北次卧 / Bedroom
儿童房 / Childrens room
装修是一件幸福又慌张的事,对未来的期待,对未知的探索,让我们的情绪总是格外容易被拨动,缓解这一份慌张,坚定自己所选的,便好。在整个装修的过程中,我们的设计以及服务得到了业主的认可,在工程结束后,还给自己身边的好几位朋友推荐了京点;只有真心待人才能被回馈真心,非常感谢业主的极力配合和推荐,我们会一直加油,不辜负每一位业主对我们的期望。
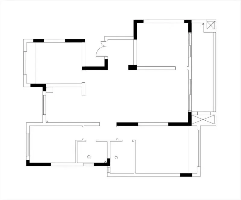
设计解析:我们从布局上打通阳台,将大阳台纳入客厅后,客厅整体的通透感、空间感变得更好,给家人明亮心情,也给客厅多了一个休闲区域,另一半用来做生活阳台,与客厅、南边次卧联通,打造双动线。南边次卧改了进门位置,进出更方便,客厅增加了储物柜和投影,每个卧室都有一组收纳柜,设计上解决了“藏”的问题,剩下的就是“显”的呈现,客厅和主卧的墙体中间有一段不是承重墙,所以从此处设计了一道双开门进入主卧,扩大了整体空间的既视感。把原先主卧的门封了起来,利用主卧过道空间,给业主增加了一个衣帽间,不仅扩大了主卧活动面积,也解决了客卫干湿分离的问题。设计一切围绕着创新、实用、唯美、细致、环保、混搭来呈现和表达,我们一直认为好的设计一定是实用和美的结合。
项目地址 | 芜湖.公园天下
项目面积丨Square Meters:150㎡
设计公司丨Design:京点设计机构
摄影机构丨Photograph:素也建筑空间摄影


学习平面功能及软装