上层起居空间 © Jonas Bjerre-Poulse
该项目位于东京安静的住宅区内,是一栋由1991年建造的36个复式组成的多层住宅,以绿色庭院的百米花园通道为特点。该项目不仅是改造项目,而且是包括景观、室内和家具设计的综合性项目。
▼室内概览 © Jonas Bjerre-Poulse
阳光透过庭院的树木,从巨大的窗户照进生活区,建筑的活力使空间设计更具优势。光线突出了室内装潢的丰富性以及墙面和地面的材质。咖啡桌的玻璃面板反射了树叶的颜色变化,预示着季节的转变。
▼底层起居空间 © Jonas Bjerre-Poulse
▼上层起居空间 © Jonas Bjerre-Poulse
▼阳光照进生活区 © Jonas Bjerre-Poulse
▼木制墙面和地面 © Jonas Bjerre-Poulse
▼不同材质相协调 © Jonas Bjerre-Poulse
▼餐厅 © Jonas Bjerre-Poulse
▼厨房 © Jonas Bjerre-Poulse
▼工作室 © Jonas Bjerre-Poulse
为了满足人们重新联系自然的愿望,该项目注重每个元素的呼应,选择合适的材料并使它们相互协调。设计师通过微调各个方面,成功地将自然引入生活空间,营造出充满灵性的舒适而温馨的氛围。
▼考究的器物搭配 © Jonas Bjerre-Poulse
▼墙面细部 © Jonas Bjerre-Poulse
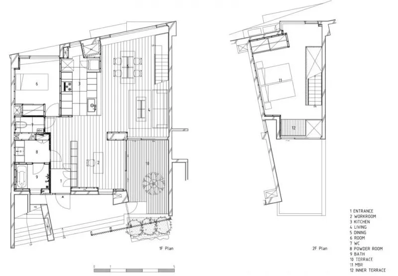
▼平面图 © Keiji Ashizawa Design+Norm Architects
▼剖面细部 © Keiji Ashizawa Design+Norm Architects
Site: Tokyo Architect: Keiji Ashizawa Design+Norm Architects Project architect: Keiji Ashizawa / Kenta Hirayama Furniture: karimoku case study Photo: Jonas Bjerre-Poulse

