INT2 architecture新作,58㎡公寓位于一栋旧的建筑中,经过设计师改造,在功能上分为三个区域:厨房起居室,卧室和走廊/更衣室。从视觉上看,它是一个带有三个大窗户的空间。
该项目内部具有中世纪风格的物件,以极简的配色勾勒出简约时尚的视觉空间,现代的流畅线条划分空间功能,结合了工业和古典元素混搭出艺术格调和时尚风范。
PROJECT TEAM
INT2 architecture,来自圣彼得堡的工作室,作品总是透露出北欧风的清新与惬意,在十分擅长打造粗犷硬朗风格的俄罗斯,显得十分的特别。
Interior SVK
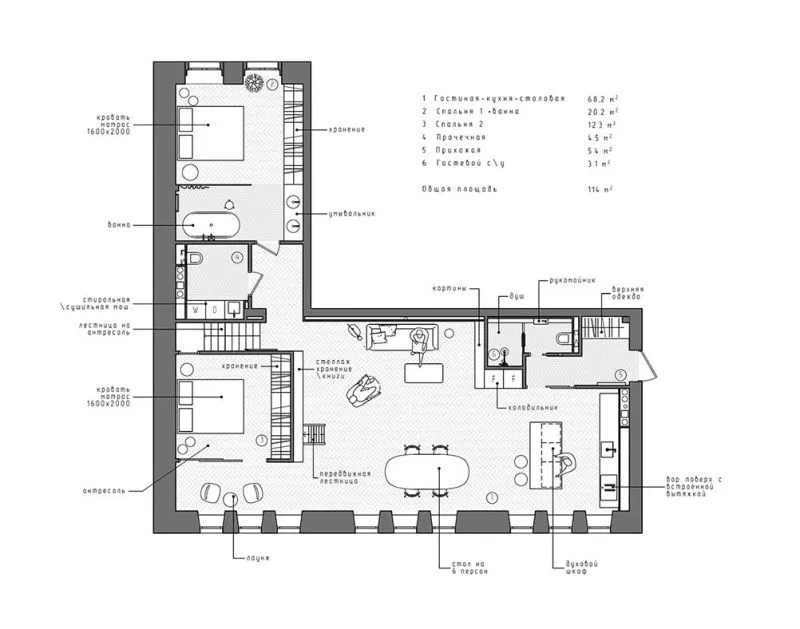
项目位于一栋历史悠久的豪宅中,面积114㎡,主要任务是保留公寓主要场所的原始空间,同时在其中布置所有必要的功能区域:
入口大厅、厨房、餐厅、客厅、客房、储藏室和浴室。
设计师创建两个子空间(
),其中一个是带客用厨房的客卧,阁楼和一个图书馆,另一个是门厅,浴室和厨房的一部分。
带岛的厨房餐厅,酒吧柜台,沙发区和一个小而舒适的早餐场所。
两个子空间中都安装了玻璃滑动隔断,而不是
室内门,一方面充当了入口区/卧室和公寓公共区域之间的隔音屏障,另一方面又让光线通过并在视觉上扩大了小房间。在主卧的入口处,玻璃后面有一个独立的浴缸,还有一个带洗脸盆的区域。
历史悠久的砖砌结构以及带有横梁和砂浆的混凝土天花板被漆成白色,地板上铺设了扩大人字拼木地板,浴室堆叠了带有深色灌浆的几何形状马赛克,并结合了大理石和混凝土质地。


现在这个浮躁的世界,能细心整理一些东西发上来的越来越少了。要么就是敷衍的图片,要么就是枯燥的文字。之后就是AI生成的预制菜类的打包便捷快餐了。感谢楼主的分享,让我能在大智能无人化来临之前,看到同类发出的项目。有幸与您互动,缘分2
是不是一直复制,人就会变懒,变笨,第一次的复制粘贴,可能还略带羞赧,第二次再复制,内心的自责就少了一分,第三次毫不犹豫的ctrl+v 是那么的心安理得。回头一看,重复的留言已经700多条了。心安理得么?得到了什么呢?
人生本就短暂,走了除了家里三代人能记得,谁有会记得谁呢?反倒是这数字世界会多多少少留下我们的印记,然而周而复始的评论终究无法让人看上一眼,注定成为网络垃圾。
宝剑锋从磨砺出,梅花香自苦寒来。