EC Apartment是一座位于圣保罗Jardins区的公寓,面积约为120平米,屋主是一位金融公司的主管,每天高强度的工作让他感到疲惫,当他买下这座上世纪七十年代的公寓后,他聘请DT Estúdio进行改造,希望营造出一个有些大胆,有些温暖,有些质感的生活家。
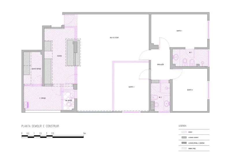
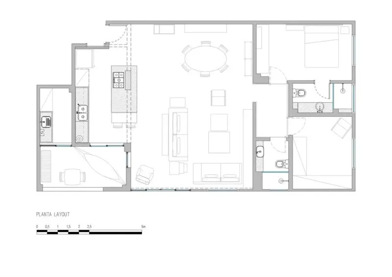
▲设计师根据屋主的实际需求出发,将原先的三居室改为了两居室,扩大的公共区域显得十分宽敞,对于朋友的来访,也显得十分友好。
▲室内采用了开放式的布局,所以自入口进入,呈现在眼前的便是厨房、客厅以及餐厅。
▲由于每天高强度的工作,屋主表示回到家后希望可以感受到柔软与舒缓,设计师首先利用石材地面与灰色柜面保证视线的清爽与光洁感,并选择了令人惊喜的粉色调装饰厨房区,粉色与橡皮粉的搭配柔和且具有层次感。
▲沿着吧台的侧面,设计师定制了一张两人位的餐桌,不论是一人的早餐还是下午茶,都显得十分惬意。
▲厨房通往建筑的露台,橱柜保持的距离正好可以保证光线的穿梭。
▲可以看出原先的厨房拥有一堵厚实的隔墙,将它拆除后正好定制出中岛吧台,增加空间的利用率。
▲这一小片区域,可以作为惬意的阅读角,同时也起到了划分区域的作用。
▲在原先水泥砖的基础上,客厅铺设了一层简单的地板革,深色调更显质感典雅,在充沛的光线下,拥有了更多的温暖。
▲空间运用了非常多的灰色调,十分符合男性沉稳硬朗的魅力,自然光线与泛黄的灯光,则是点亮这里的温暖元素。
▲客厅旁为餐厅,椭圆形的六人餐桌方便屋主招待朋友,而周边的一切则是屋主个人品味的绝对彰显,可移动的置物柜里装满了各类的酒水,一旁的书架将大量书籍堆叠整齐,墙面的装饰画全部是屋主挑选出的,这样的氛围似乎很容易营造出绅士的个人气质。
▲这是客用洗手间,紧邻着书房。
▲主卧呼应了粉色调、木料的元素,显得温暖且清爽。
▲整墙的衣柜将部分叠放区与悬挂区做成了开放式,方便屋主的拿取。
摄影/Evelyn Müller

