这是由balbek bureau Studio的三位设计师Slava Balbek、Olga Bogdanova和Nadya Chabanny共同合作完成的一座公寓,面积为180平米,它的主人是一位单身女性,平日喜欢社交,希望在自己的房屋里可以招待好每一位客人,而设计师们也根据建筑的格局对功能区进行了调整,自入口开始的一条动线贯穿了公共区域,到达卧室、衣帽间以及最后的洗浴室。
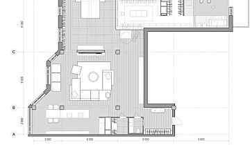
▲建筑并不是方正的格局,自入口至卫生间呈匚字型,按照屋主喜爱的开放式空间设计师几乎拆除了所有的隔墙,有趣的是公共区域与私人区域之间却依旧保有隐私,这是如何做到的呢?
▲穿过入口得到玄关后设计师首先规划了一间客用洗手间,仅摆放马桶和洗漱台,整体以清爽现代的白色调为基底,却利用一整墙的旧报纸增添历史感,形成鲜明的对比。
▲这种对比在正式进入生活区后再次出现,设计师们特意利用回收的红砖铺贴墙面,与一旁已经斑驳生锈的铁门进行呼应,形成了粗犷原始的工业氛围,这与现代的家具和温暖的地板都反差鲜明。
▲在拆除了几乎所有的隔墙后,功能区的划分成为了需要思考的问题,在厨餐厅设计师选择了架高地面的方式,由木质地板变换为微水泥的地板,不仅在视觉上进行了清晰的划分,在实用性上,微水泥也显得更为合适。
▲厨房的中岛吧台延伸后成为了餐桌使用,木料与白色调看起来清爽洁净,而厨房墙面也没有选择过于厚重的柜体,而是利用开放式的置物架和小面积的白色柜结合,将储物空间上移,更显得轻盈灵巧。
▲客厅的木质地板搭配米色系的家具,显得温暖惬意,按照当下流行的灯饰法则,取消主灯,改装为多盏筒灯,多光源让光线照射更加均匀,也更富有层次感。
▲保留下的混凝土立柱丝毫不显突兀,反倒成为了全新空间中历史魅力的见证。
▲一些小小的配件,也可以瞬间提亮空间。
▲客厅的混凝土板电视墙成为了划分公私区域的界限,恰好可以适当的挡住卧室的隐私,即便朋友来访也不觉得尴尬。
▲电视墙的背面摆放了一张白色的书桌,成为清爽的办公区域。
▲从客厅看向主卧,靠近东侧的视线会被一面木墙遮挡,设计师摆放上黄色的单人椅与木梯置物架,形成一个私密的阅读角。
▲电视墙的另一侧也只可以很好的错开双人床的位置,设计师围着两扇窗户定制了山字形的书架,这个结合了工业与现代风的空间因为这些满满当当的书籍,赋予了诗书气息。
▲睡眠区的地面也被架高,刻意突出了隐私区的位置,墙面与天花板都铺设了利落的石膏线条,向上的延伸在视觉上可以提升整体的高度。
▲通过继续架高的橡木框架,来到屋主的衣帽间,以此满足屋主对单一动线的追求,衣帽间内定制了两侧的柜体与中岛,足够摆放一人的所有物品。
▲穿过衣帽间后为洗浴室,内部空间非常宽敞,双人洗漱池、浴缸等功能区全部齐全。
balbek bureau
摄影/Andrey Bezuglov, Slava Balbek


现在这个浮躁的世界,能细心整理一些东西发上来的越来越少了。要么就是敷衍的图片,要么就是枯燥的文字。之后就是AI生成的预制菜类的打包便捷快餐了。感谢楼主的分享,让我能在大智能无人化来临之前,看到同类发出的项目。有幸与您互动,缘分。
叠塔