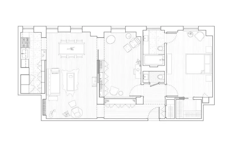
Format Architecture Office翻新了位于河边大道的一间92㎡公寓,把复古装饰细节融入当代空间中,并通过定制橱柜来扩大房间的储存功能,同时加宽木质走廊,让各个功能区灵活连接的同时,最大限度引入光线。
▲入户门被刷成了活力的橙色,它将与这个家中的众多蓝色元素形成互补色调。
▲玄关入口是一条走廊,侧面定制了半面壁柜来收纳物品,上半部分则是长虹玻璃,在保持隐私的条件下为过道引入光线。
▲站在玄关走廊可以看到客厅墙面上的嵌入式书柜,书本和摆件随意零散地放入其中,尽显格调。
▲在这个白色与木色调交织的中性空间中,客厅里摆放的蓝色沙发显得格外亮眼,搭配深棕色家具,让人感到舒适和淡淡的复古氛围。
▲设计师选用木质餐桌搭配Eames金属丝椅,材质的碰撞和镂空设计,让餐厅区域更显现代灵动。
▲厨房中白蓝色系的橱柜透漏出一股清新之意,半面长虹玻璃与木材结合的隔断,与玄关元素相呼应的同时,也增加了空间的看点。
▲墙面铺贴的白色的六边形瓷砖,给厨房带来细微的层次感。
▲设计工作室为厨房定制了足够的收纳空间。
▲与厨房相对的门洞通往休息室兼步入式衣帽间,木质移门可以巧妙隐藏或展现这个房间。
▲站在衣帽间望向厨房的视角,可以更加清楚地捕捉到蓝色元素运用在这个空间中的和谐与美妙。
▲除了移门,衣帽间还有另一扇门的存在,形成洄游式动线,让空间紧密串联。
▲经典的Eames模压胶合板椅子被放在角落,和木质壁柜相得益彰。
▲卧室延续了蓝色 木色 白色的中性风格配色方案,纯净的配色和房间里干净的线条呈现出简洁温馨的视觉效果。窗外的风景成了房间的一大亮点,它正是一幅随着四季流转的最佳“装饰画”。
▲浴室采用墙面白砖工字铺贴,整体视觉简约清爽。
设计/Format Architecture Office
摄影/Nick Glimenakis

