本案設計以東方韻味中的雅致恬靜為主題,抽取了經典的部分,將東方元素與家庭空間的概念完美融合,把設計和藝術帶進生活。
项目名称:雅居樂·清水灣別墅
项目地址:陵水·海南
委託單位:雅居樂置業有限公司
設計面積:470㎡
竣工时间:2020年11月
設計單位:柏舍設計
主創團隊:梁浩然、梁淑芸、魏苑雯、胡家麒、梁淑怡、麥瓊喻、歐陽鋒、梁成滔、鄭麗娟
生活如詩
清新 · 雅致
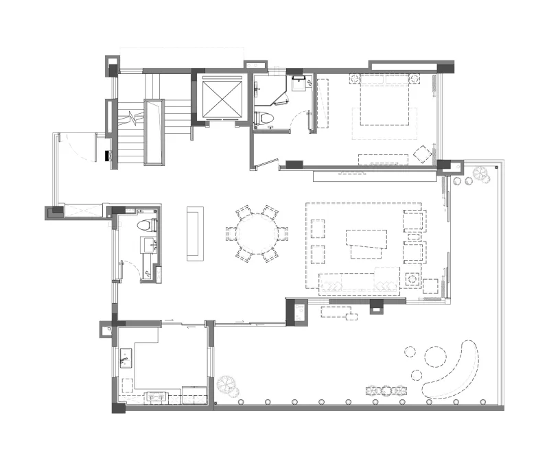
壹层渐入佳境
用打破傳統的間隔手法重新思考空間的可能性、開放性,以穿透的表現方式來重組空間。同時抽取了一些特定的東方特色性質,使用了大塊面切割空間。
以東方韻味將傳統的事物換以新穎的形式灌注進生活中設計中,從而呈現出一個適合居住的清新雅致和極具韻味意義的生活空間。
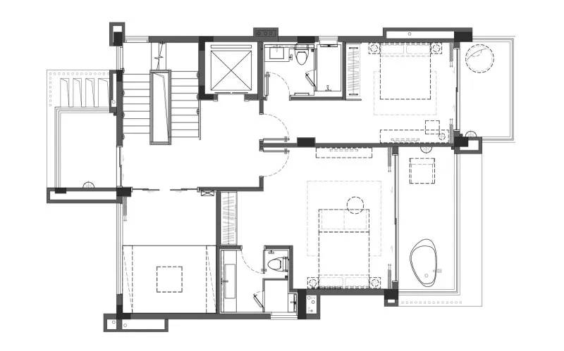
贰层品味人生
平淡品禪的裝飾格局,大道至簡的空間搭配、自然恬靜的空間氛圍,山水共融的柔性臥室,樂享生活。
叁层酣暢淋漓
精緻的整體氛圍營造,不顯奢靡,不落俗套,中正大氣的整體構造讓品質生活在萬千暢享中迸發活力,愉悦而至……
负壹层黎明破曉
設計師以層層遞進的表達形式將空間的氛圍營造與美感表達以故事線的形式穿插起來。
「結語自然 · 恬静 」
溫潤的光線營造仿佛破曉前的寧靜,融入讓整個空間彌漫出沉思的氣息。落日總會帶來迷人的味道。

