台湾工作室A Little Design已将台湾台北的一家前钢琴工作室改造成一间带内置节省空间的家具的小公寓。
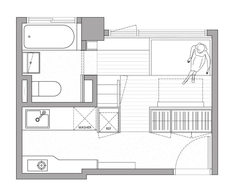
公寓前身为钢琴工作室,面积仅为17.6平方米,天花板高度为3.4米。横跨公寓的混凝土梁进一步限制了可用空间。
这个小公寓的房主忙碌的职业生涯需要她经常出差,偶尔在国外生活很短的时间。在台北的时候,她很重视在较大的生活空间上短途通勤。尽管它的面积很小,但这个地方已被重新配置为包含实际比例的所有必需品。装饰方案也有助于小空间流动,具有平滑的木质效果家具和地板,清新的白色墙壁和存储设备,以及智能浅灰色调装饰。
紧凑休息室的沙发区也是简约的工作空间。一个匀称的桌面从对面的墙壁折叠出来,足够大,可以舒适地握住笔记本电脑,参考材料和强烈的黑咖啡。在壁柜内,在折叠式桌面下方,隐藏了几个鞋子存储空间。
由于夹层卧室没有站立高度,因此衣柜被整合到公寓的入口通道中。其他储物柜利用楼梯下方和浴室门上方的每一寸空间。
当折叠式办公桌/鞋柜关闭时,小型休息室显得更宽敞,通风。客人可以使用整洁的地板、阅读灯,通过沙发/沙发床提供工作照明。主要生活空间的狭窄通过门口通向入口通道,以及开放式双层楼梯的视野来对抗,并且在夹层平台上露出躲猫猫。
通往浴室门的一步会导致楼层的变化。该平台为木质沙发框架和相邻书柜的一部分进行整合,并且还在其盖子下面隐藏了存储空间。第二个书柜作为一个细长的白色塔单元爬上浴室门的一侧。
浴室门滑开,以免侵占地板空间。设计团队在项目期间改变了浴室和厨房的位置:“与整个空间的小面积相比,浴室相对较大,而厨房缺乏实用性 – 它甚至太小而不适合冰箱。”
设计团队还将入口通道和厨房相结合,创造了一个连续的空间。
新的厨房位置,现在有一个冰箱,洗衣机和两个墙壁安排的电炉的空间。
在小厨房厨房中实现了相对大量的厨房工作面,其还具有安装在工作台面高度上方和下方的充足存储架。
木制开放式厨房搁架温暖了浅灰色和白色厨房装饰的外观。
木制楼梯在夹层楼上爬上床。
现代简约的栏杆可以防止楼梯与房间的其他部分隔离。
陡峭的立管迅速爬上垂直空间。
桌面和抽屉位于混凝土梁下方,横跨公寓。一个小型室内植物和一个台钟令人愉快地装饰表面。
大号床垫在白色卧室的宽度上适合边缘到边缘。由于床边空间不足,现代壁灯提供阅读灯。
在团队将旧浴室位置与厨房交换后,其布置的规模略小。然而,新的灰色和白色浴室现在受益于自然阳光和更好的通风。一个高高的滑动镜面门穿过橱柜,使浴室看起来更加明亮,给人一种更多空间的错觉。
在镜面门的后面,有一个狭窄的凹槽,配有方便的毛巾和洗浴用品架子。当门位于罗纹玻璃浴室门前时,门也提供额外的隐私。
白砖效果瓷砖覆盖每面墙,并装饰浴缸匹配。
微型公寓的流行不是我们对台北市高房价问题的回答,而是生活问题的长期演变和客户带给我们的任务的结果,”王先生补充道,他的工作室之前曾设计过这座22平方米的微型公寓位于市内。“我们希望设计的尝试可以为这种生活类型提供一些方案和可能性。
设计团队:A Little Design

