 
 
筑一方高处的佳宅 ,半边是城,半边是自然。以真质璞无华的精神 ,打造这座城市精妙的山地美学别墅作品。
在远离尘嚣的环境中 ,设计师以“自然、城市、山居生活”为概念 ,以生动却不张扬的语言去探索与自然之间的暖昧关系。利用山地高差 ,全资源设计 ,打造三台庭院、露台、阳台。
 
 
住宅总共分为三层 ,根据每个空间朝向与景色的不同,为了让日常活动与自然达到协调统一, 每个空间被重新赋予了意义 ,使得他们能在“城市山居生活”这个核心概念中充当着合适的角色。
 
 
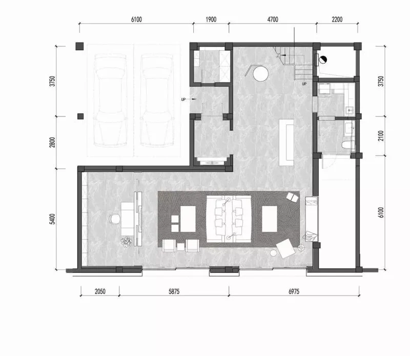
设计整体围绕着“城市山居生活”的概念展开 ,一层核心空间功能上由中厨 ,西厨与就餐区组成,西厨中岛的设计在空间中与中厨相互补充 ,同时为追求生活品质感的使用者提供一个与家人互动拉近距离的平台。
 
 
 
 
 
 
 
 
 
 
 
 
流线型楼梯缓缓步行而下可至标高层空间,步入楼梯区域可以感受到一气呵成的整体扶手设计,贯穿整体的设计 ,为云台“简洁、自然”的氛围奠定了基调。会客厅被安置在地势较高的坡地之上 ,灵活的布局与可分可合的空间隔断让起居空间与书房被联通起来,让室内活动与户外庭院连接起来 。
 
 
经过修复后运到上海时椅子线条的流畅度与自然的曲线仍然能够给收藏者留下舒适的体验。
 
 
主入口被重新安置在基地较高处 ,入户后直接与户外的观景平台相连接 ,这里被重新定义为家庭聚餐和观景的核心空间。入户观景台,俯瞰城市
 
 
 
 
 
 
赖特的建筑作昂充满着天然气息和艺术魅力 ,对于材料的内在性能 ,包括形态、纹理 、色泽、等等有着独特的见解 ,在设计过程中赖特的设计理念启发着设计师去思考设计的内在因素,力求设计与自然的和谐共鸣。
 
 
 
 
群鸟自由的在云端翱翔 ,向着家的方向。
 
 
 
 
材料选择上主要遵循着与自然“衬”与“点”的关系,色彩采用了整体且具有丰富变化的暖灰色系,一方面柔和的色彩为家提供了素雅且温馨的氛围,另外色彩与质感统一处理 ,使得室内空间成为环境的背景 ,在让自然色彩成为了空间的主导。
 
 
 
 
 
 
 
 
 
 
 
 
 
 
 
 
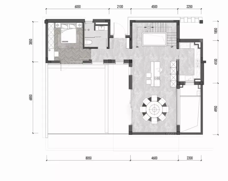
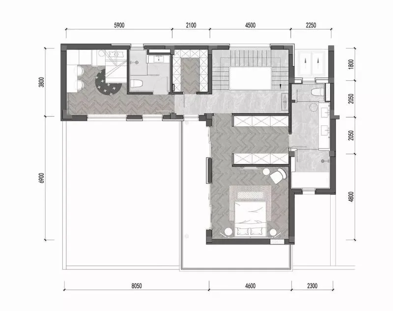
保证视野和豪宅私密性 ,二层核心空间功能上设置主卧、270度阳台和儿童房等。满足主人的起居功能。
 
 
 
 
 
 
 
 
 
 
 
 
 
 
主案设计:徐伩君、桥义(Justin Bridgland)
软装设计:唐艳萍、曾玺锦


