© Yong-joon Choi
蔡永俊
架构师提供的文本描述。贾特博士在艺术和文化的启发下,追求一种基于皮肤病学的健康美。贾特博士用最理性、最合乎逻辑的“医生眼睛”来诊断一种现象,用“艺术”的情感和灵活的表达方法来暗示美的真正价值和方式,并谈到“健康之美”。
Text description provided by the architects. Dr. Jart+ has pursued a healthy beauty based on dermatology, inspired by art and culture. Dr. Jart+ diagnoses a phenomenon with the most rational and logical ‘doctor’s eyes’, suggests the true value and the way of beauty with emotional and flexible expssion methods of ‘art’, and talks about ‘the healthy beauty’.
© Yong-joon Choi
蔡永俊
贾特博士最初在加洛苏-吉尔建造的空间被命名为“过滤空间”,拥有最纯净的“水”、“空气”和“光”,这是健康美的三个要素。贾特博士的第一家旗舰店是“首尔过滤空间”(Filter Space汉城),在那里,“水”、“空气”和“光”等健康美的基本元素可以最精致的形式体验,而且计划成为环境污染日益严重的环境中最干净、最舒适的体验空间。
The space of Dr. Jart+ first built in Garosu-gil is named ‘Filter Space’ having the purest ‘water’, ‘air’, and ‘light’, which are 3 elements of the healthy beauty. Dr. Jart+’s first flagship store ‘Filter Space Seoul’ is where essential elements of the healthy beauty such as ‘water’, ‘air’, and ‘light’ can be experienced in the most refined form, and it is planned to be the cleanest and comfortable experience space in the environmental pollution which is getting worse every year.
© Yong-joon Choi
蔡永俊
Courtesy of Betwin Space Design
由Betwin空间设计 提供
© Yong-joon Choi
蔡永俊
建筑物的现有形状保持不变,在屋顶上安装了一个大型空调系统,并精心设计,使之看起来像一台功能齐全的机械,将每一层楼与风管连接起来。它也被认为是一个过滤器覆盖在冲孔不锈钢板在白天,而现有建筑物的形状和性质暴露在夜间,显示出紧密结合的空间和建筑物的功能。可以在楼梯上探索覆盖建筑物的风管,这是进入新建筑区域的入口之一,因此进入每一层楼的形式允许“人”和“空气”。
The existing shape of the building is kept, placing a large air-conditioning system on the rooftop, and it is carefully designed to look like a piece of functional machinery connecting each floor with air ducts. It is also recognized as a filter covered with punched stainless steel plates during the day, while the shape and nature of the existing building are exposed at night, showing closely combined function of space and building. The air ducts covering the building can be explored in a staircase, which is one of the entrances into the new area of building so that the form of access to each floor allows ‘people’ as well as ‘air’.
© Yong-joon Choi
蔡永俊
Courtesy of Betwin Space Design
由Betwin空间设计 提供
© Yong-joon Choi
蔡永俊
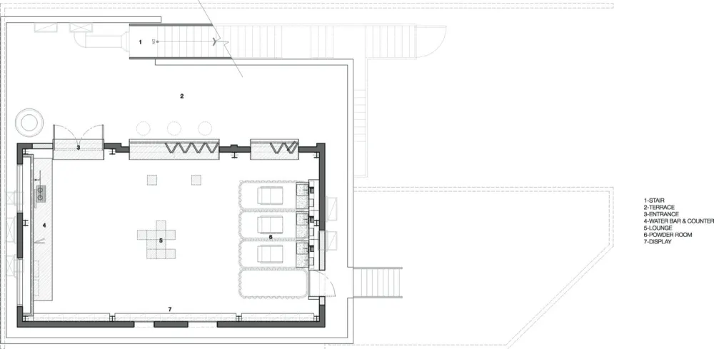
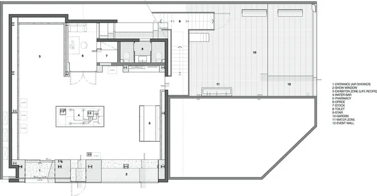
在一楼,游客可以通过一个“空气淋浴房”进入空间,这是为了保持空间清洁从外面。通过提供一种“水棒”,这种水以人体最基本的元素而闻名于世,人们可以从贾特博士的一些建议开始他们健康的美丽生活。此外,“生活食谱”,过滤空间只有,是特殊的程序。它不仅考虑了顾客的皮肤状况,还考虑了他们的情绪和健康,然后如果游客把处方带到药房,他们就可以得到一些与他们的皮肤状况相关的产品样品和糖果。
On the ground floor, visitors can enter the space through an ‘air shower booth’ which is created to keep the space clean from the outside. By offering a ‘water bar’ which is available to have purified water, well known for the most fundamental element of the human body, people can begin their healthy beauty life with some suggestions of Dr. Jart+. Furthermore, a ‘life recipe’, the filter space has only, is special program. It pscribes considering not only customers’ skin condition, also mood and health, and then if visitors bring the pscription to a pharmacy booth, they can have some product samples and sweets related to their skin condition.
© Yong-joon Choi
蔡永俊
Architects Betwin Space Design
Location Seoul, South Korea
Category Office Buildings
Design Director Jung-gon Kim, Hwan-woo Oh
Design Team Jun-ho Kim, Min-yi Kim, So-yeon Kim
Area 109.06 m2
Project Year 2016
Photographs Yong-joon Choi
Manufacturers Loading…

