卡兰蒂斯是国内顶端软装品牌,致力于为客户打造一个健康、舒适、安逸的生活环境。其上海办公室委托埂上进行重塑设计。
设计目标在于运用极简的设计手法,结合空间哲学及软装点缀,营造出干净、优雅、艺术的工作环境。
 
 
 
 
 
 
 
 
 
 
▽文化长廊一侧利用阵列式柔光磨砂灯构筑序列感;顶面用两条线条强调虚实及纵深;走廊尽头以实木构件表达建筑语言;同时提供随地而坐的木榻。
 
 
 
 
 
 
 
 
 
 
 
 
▽用镜面、光影构建出太虚幻境
 
 
 
 
 
 
▽干净简洁的办公区域、线性灯管分割空间、暖色光及木质柜穿插其中
 
 
 
 
 
 
 
 
▽会议室采用“框景”的方式给予视线延展
 
 
 
 
 
 
 
 
 
 
 
 
 
 
 
 
 
 
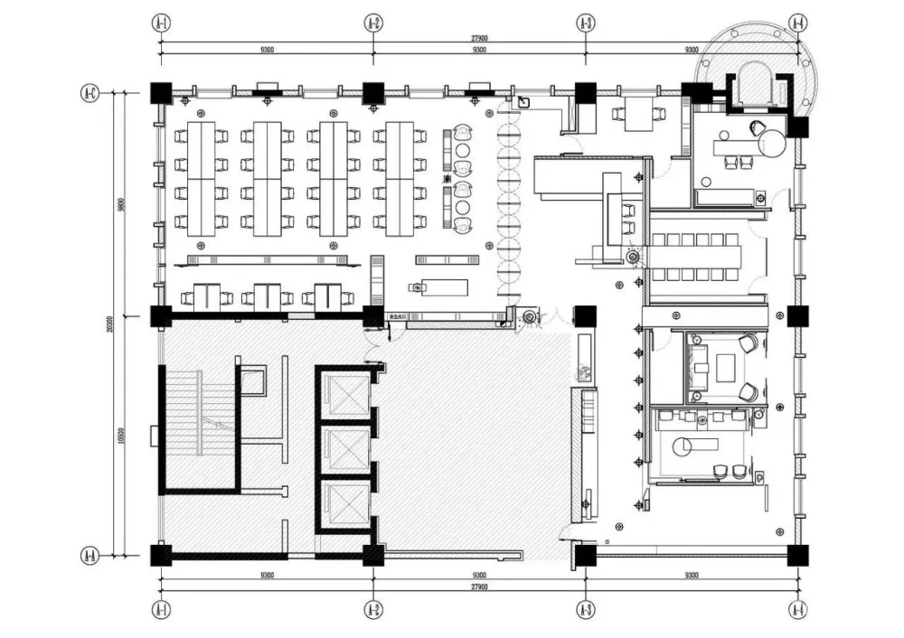
项目名称:卡兰蒂斯·上海办公室
项目地址:上海
使用材料:水磨石,不锈钢,木饰面
项目面积:360m²
完工时间:2019.01
设计公司:埂上设计事务所
主案设计师:李良超 文志刚 黄元满
专案设计师:钟文娟
摄影:黄缅贵


