急躁与静谧的时光不断轮回,我们也希望家是一个安静的容器,居者能享受这份安宁,面对都市飞快的生活节奏,迟缓,一段真正属于家人的时光……”
业主希望在家里可以拥有简单舒适的生活状态。高级灰、舒适、轻松是业主对家的期望。
室内若是未经任何思考就产生的空间,便会无声的消失在这城市的建筑体量中,没有任何人自己的性格。
通过对光的引入编织,营造简约纯粹的生活方式与空间环境,使其能够将人的视野引到幽静的景色中去,建立起同时室内空间与城市环境之间的联系。
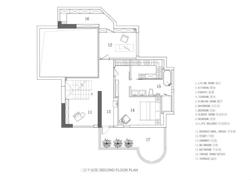
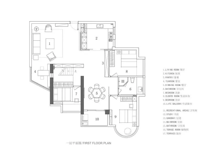
在整体结构设计上,以简单的形式和布局。在原31层公卫与32层露台的位置以一座新建的楼梯连接,将两个完全不同的上下层空间转化为一个彼此联系的整体。楼梯上方加建一个阳光房,将自然光线引入客厅,同时拉开了客厅与卧室之间的关系.
空间以简洁形体组成,强调空间的色块关系。大量柜体的运用,让极简的空间环境中体现细节与实用性。
以低调内敛的材料,灰色的地砖白色的天花墙体,配合部分暖灰色系的木饰面,简单的材料关系,便创造出了一个宁静却丰富的室内空间:阳光与色彩丰富的装饰画让家不会缺少的温暖氛围,材料肌理和丰富的感受。

