Contracted – Not simple
Landsea shanglinxihuafu
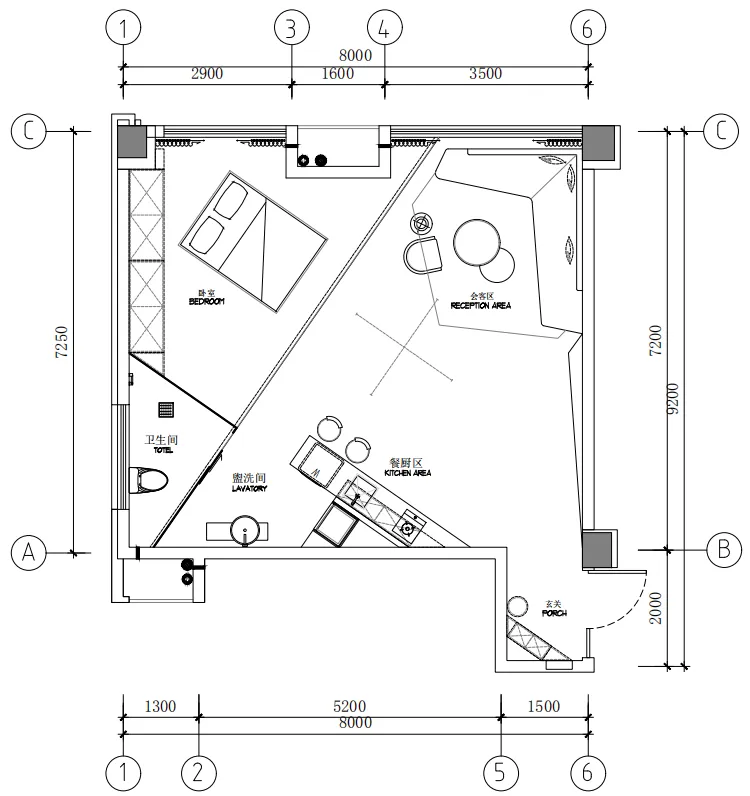
地处东二环边,刃具立交和府青路交汇处的位置,除了紧邻已成型的建设路商圈,与发展中的昭觉寺-八里庄商圈也密切相接,向东发展的城市规划导向,为东二环的发展送上东风。设计师结合了项目的定位和未来客群,将现代主流的时尚简约风植入到设计中,严谨的把握设计细节, 将设计元素、色彩、照明、原材料简化,让每一个细小的局部和装饰,都以简洁而有趣的表现形式展现在人们面前。
 
 
琥珀设计团队为了呈现更多有趣的设计想法,安排了5位年轻的设计师去完成他们想表达的创作,让每个空间的整体设计风格极具特色,不仅在感官上给人时尚简约的舒适感,且擅长关注细节,注重设计所能带给人的感觉,设计中的材质选择和组合更是成为他们定义小型公寓设计的重点。
Box space, diamond-shaped arrangement
 
 
设计师将平面布置的很有趣,将整个空间完全打开,视野变得非常开阔,时尚与质感的结合,色彩柔和雅致,并还原材质本来的美感,展现优美简洁的线条,在搭配简洁实用的家具,利用灯光的运用设计,营造舒适又充满灵感的生活空间。
 
 
 
 
Small space, big interest
 
 
设计师通过对盒子空间的重新重塑,将固有思维完全打开,营造极富现代社交功能化的生活空间。加上意想不到的把空间进行有序的分割在组合,以现代设计语言表达时尚和温馨。
 
 
 
 
Smart space, web celebrity era
 
 
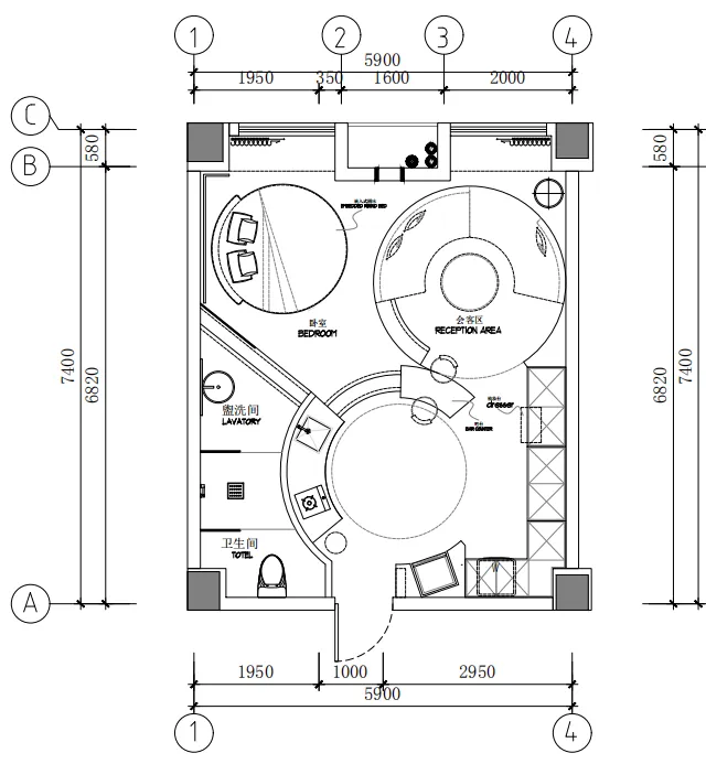
设计师使每个空间都有其独有的气质与标签,简洁、 实用的多功能个性化空间,这种布局巧妙地遮掩了卫生间以及厨房设施区域,充分的将使用功能展示出来,大面积柔和的简约色彩为室内带来充足温暖感,运用家具的色彩与淡雅的线条格外醒目,每个角落都有造型独特使用空间。
 
 
 
 
 
 
 
 
Fun of home, your personality
 
 
设计师为灰白基底的空间配置色彩跳跃、却不喧宾夺主的色彩搭配与个性装置。进入到整个空间就能感受到主人的个性,开放的客厅空间,拉伸了空间尺度,墙上的艺术挂画与酒架的藏酒装置相互呼应,相信他是一个非常酷而有趣的人,很享受他的生活,也很热爱自己的事业。
 
 
 
 
 
 
 
 
 
 
 
 
 
 
Neat and practical, warm home
 
 
每个设计师也有独立的个性和喜好,大面积的背景墙和空间里没有过多复杂的设计,简单的线面造型,恰到好处的留白是设计师赋予家的深意,只想让家更温馨更宁静,并巧妙的运用了不夸张的颜色搭配,为单身人士打造的私密空间。
 
 
 
 
 
 
 
 
 
 
 
 
 
 
 
 
 
 
岁 月 沉 淀 · 精 髓 凝 聚
追 求 完 美 · 铸 造 品 牌
 
 
ABD琥珀设计,主要服务于高端室内设计,于2013年在中国香港成立高端设计品牌—琥珀设计,并入驻成都,主要负责中国大陆的业务拓展。服务范围涵盖酒店、商业、地产、办公、公共空间、住宅定制等,完工项目已覆盖:缅甸、柬埔寨、四川、重庆、陕西、云南、贵州、甘肃、广西、西藏、海南、福建、青海、安徽、湖南、山东、江苏等国家与地区。琥珀设计凭借对亚洲市场的熟悉和对设计品质的高标准把控,以及在多个城市的设计成功经验促使了其品牌的成功和高速发展。琥珀设计自入驻成都以来聘用了一支全服务性的专业设计团队,包括注册建造师、高级室内建筑师、高级室内设计师、灯光工程设计师、艺术品陈设设计师、景观规划设计师、声学顾问、智能弱电控制顾问、机电顾问、消防顾问等高级专业人才。琥珀设计现已为上百家企业成功服务,我们的设计哲学很简单:为市场设计。我们以国际化的创意和视野,以独特和新颖的眼光设计每一个项目,致力于为客户创造“价值最大化”,实现商业与艺术的双赢。


