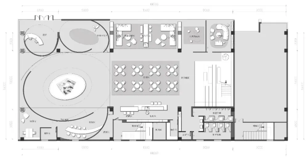
项目信息 项目名称:沈阳阳光城翡丽左岸售楼处 甲方信息:阳光城集团 甲方团队:于亮 李志强 张舒犁 罗宁 王璇 王跃 刘京瑛 孙志强 项目面积:800平米 项目地址:辽宁沈阳 硬装设计:上海柯翊建筑设计有限公司 设计团队:周晟、汤伟杰、邱雅萍 软装设计:IF DESIGN 羽果设计
KOYI 柯翊设计总监
上海柯翊建筑设计有限公司是一家专业的室内设计公司。专注于地产样板间、会所、售楼部、办公空间、商业空间、别墅、住宅等室内设计领域。至今已完成多个地产室内设计项目,倍受业界好评以及客户的专业认可,以专业的设计能力领先于市场。
经过几年的发展,团队更是吸纳了一批来自国内外各大知名设计机构设计师的加入,形成了比肩行业内一线设计品牌的工作团队和组织架构。我们年轻但经验丰富,秉承对设计的热爱和对自身价值的追求走到一起。自信对前沿风尚的敏锐接触和对国内优质需求的深度了解,能够创造出更多优秀且充满惊喜的作品,服务更多期待创新的企业和个人,开创属于KOYI柯翊设计的一片天地!

