感谢来自 WJID维几设计 的商业空间项目案例分享:
禅,是一种智慧,已兴盛千百年,对中国影响甚巨。惠能大师是汉族佛教的开创者,他的《菩提偈》是中国影响最大的禅宗诗偈。江西靖安宝峰寺的马祖道一禅师继承了惠能的主张,被胡适称为中国最伟大的禅师。

△马祖道一禅师(公元709-788年)
江西靖安,是生活禅的发源地,是马祖道一重要道场宝峰寺所在地。靖安也是一个山清水秀,恍若仙境的地方。WJID维几设计,将靖安丰富的禅宗文化与自然底蕴植入明镜湾的设计中。设计师以禅的哲学为空间依循,从肉眼观象到心眼体悟,一座东方禅学空间,将访者逐渐导入信仰的美学境界。

一位美学家曾说”白,到了是空白。白,就仿佛不在是色彩,不再是实体的存在。白,变成一种心境,一种看尽繁华之后的生命终极的领悟吧。”
在东方的美学体系中,“白”地位寻常。我想,设计师在明镜湾的多处留白设计,是通过大象无形,大音希声的方式,来塑造他最珍惜的禅学理念与信仰吧。

迎宾前厅明亮气阔,简洁的空间氤氲着禅风的气宇风华,色彩搭配极简素雅。一勺水,洗净铅华,传递美好祈愿,宛如新生。


大厅墙上艺术装置“菩提”,意为觉悟、智能、知识、道路之意,有断绝烦恼而成就涅盘智慧象征。菩提子为最常见的佛缘之物,在此也见证着室内的平静与美好。
高挑的空间大堂气势磅礡,悬挂式墙壁通透周间。设计师先采用东方古典的对称美学,稳定空间比例,又给予空间极具气势的高挑空设计,让空间带出波澜壮阔又宁静四野的庄严感。干净简洁的墙面,一片一片的留白,稳定了人的心境。



空间大量运用了对称的中国结构美学,或四角成对,或两两相对中,于步移景异间,都能看见优雅的结构美。在这个禅学空间,不断看到了经过淬炼的现代美学思维,显出毫无违和的舒适与细腻。



在有限的生命中,用单纯的纯粹,去面对一切的虚妄与搅扰,用心去感悟最真实的生命,达到自觉、自醒、自知的境界,像曾经去过印度菩提迦叶那颗大树下静坐,冥想一个修行者曾经听到过的树叶间沙沙地婆娑风声,是绿意盎然的力量,这也是禅意最大的本质。




佛教认为世间万物皆具灵性,空间拥有流通路径,即使一粒尘埃,也可自由飘洒。设计师将区分空间的墙壁有意的留有缝隙或小空间,或弧形拱形或直接留空,也呼应了中国传统的空间开合哲学。



留白,宛若水墨画,白纸上,寥寥数笔,挥毫泼墨,气韵天成,无画处皆是妙境,方寸之地亦显天地之宽。大面的墙,不做过多装饰,简单的线条,给观者留有挥发想象的空间。
高耸的拱柱,如古宅大院,结构线性艺术壁灯,与对称的垂壁墙完美搭配,在极简的氛围中,宏大气势与混搭美学并存,禅意也升华出时尚感。



设计师在视觉上以留白、纯粹、极简的东方精髓,描摹空间气度。从建筑外到内,“墙面”纯粹浑然天成,“色彩”朴实内敛自然。空间的骨干呈现,讲究现代,但内涵气质,却散发着东方,完整表达了海派东方的经典并蓄。








黑色的巨大艺术雕塑,肃穆而庄严,仿佛洞悉着世间万物轮回的艰辛与沉苦。一墙的半透光景,再点亮万壑烛光,让气阔的空间,多了更多的人生故事与缥缈的视觉氛围。





沙盘区的回字空间,大面落地玻璃,可以感受完整大面的舒适临光。阳光萦绕渗入屋顶空间上的片片莲花瓣中。艺术装置运用串起的花瓣,将光透过琉璃折射的静态转化为超凡脱俗,盈光婷婷的脉络。一个空间,有了信仰的审美,便开始领悟在时间中的修行。


天花设计勾勒出斜屋顶梁构,让精神如入传统庙宇意象,呈现为风雅利落的现代骨干式建筑。长木为隔栅,遍布天花立面间,于无形中拉长空间的高度与深邃,放大场面气势。


洽谈区的设计主题围绕圆与弧。舒适的区域,一场域,四面景,透视窗外,看穿门外,于洽谈品茗间观画里的美好弧度。虽是室内空间,但走开放式格局,空间不受局促,充满开放的轻松感。微尘在格栅间飘散,像是沙漏里流失的时间,点点滴滴,像是在诉说着世间因果。
木,自然、纯粹、时尚。空间的天花装置始终以木作为主角,做细格栅接出圆弧包覆,使弧的柔,弱化了空间因挑高而带来的孤寂。禅意的清境在空气里绽放,自然朴实色系放大了禅的圆融。


洽谈区天花板木栏栅设计,以视觉界定空间焦点,隔栅直线无形延伸了空间宽度,也延伸出空间的优越。洽谈椅有巧妙的圆弧扶手,恰与墙面抽象画成圆弧协调姿态,象征微笑拥抱以及佛家笑对人生,知足常乐的人生态度。









“初见都是黑,静下来多停留一分钟,就多发现一道光。听觉过后,黑暗里视觉其实也非常清楚,可以辨认出极幽微的光。”诵经阁的设计采用了多媒体的表现手法,完美的影音体验让人惊呼设计师将众生领悟从视觉、听觉的感受慢慢过度成心灵视域的追求,一步一步让前往的人们感受到技巧的极限距离信仰的沉静包容还很遥远……禅文化带来的是净化人心的力量,是惬意自如的生活方式。明镜湾的精妙设计,展现了禅学信仰的秩序与魅力,仿若我们于人间作为有情众生、如是因缘的心灵印记。
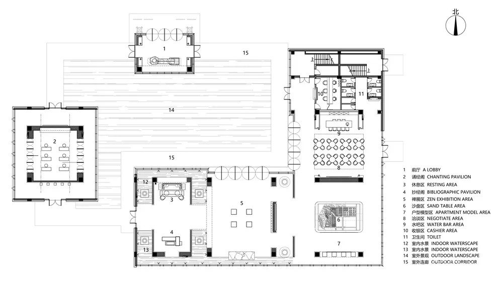
∇ 平面图

主要项目信息
项目名称:绿地明镜湾
项目地址:江西靖安
项目面积:1500㎡
业主机构:绿地集团
甲方团队:江西事业部技术管理中心
室内硬装设计:WJID维几设计室内
软装设计:WJID维几设计
完工时间:2019年7月
项目摄影:感光映画(建筑景观照除外)

